Te koop Huis

Beschrijving van   

Vergelijk realty's

Te koop Huis

Huis Huis Huis Huis Huis Huis Huis Huis Huis Huis Huis Huis Huis Huis Huis Huis Huis
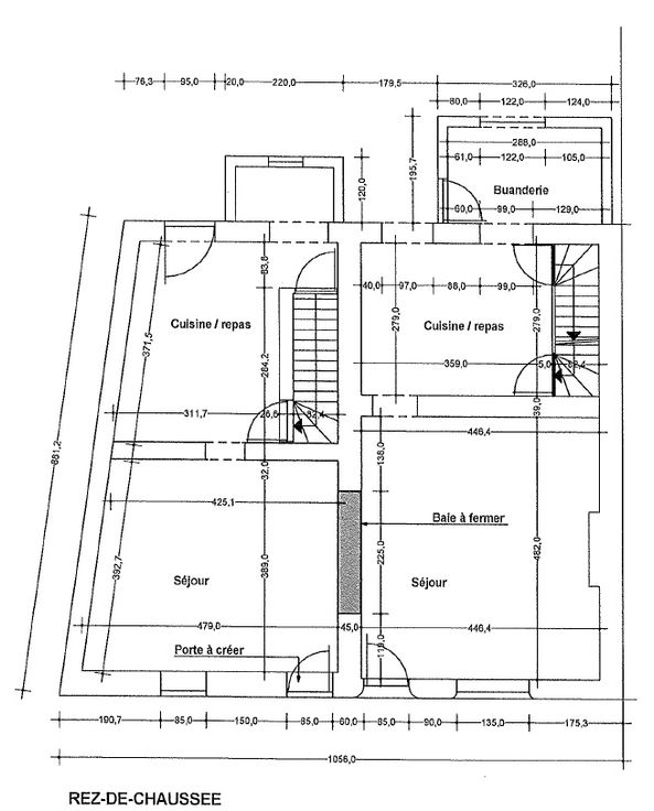
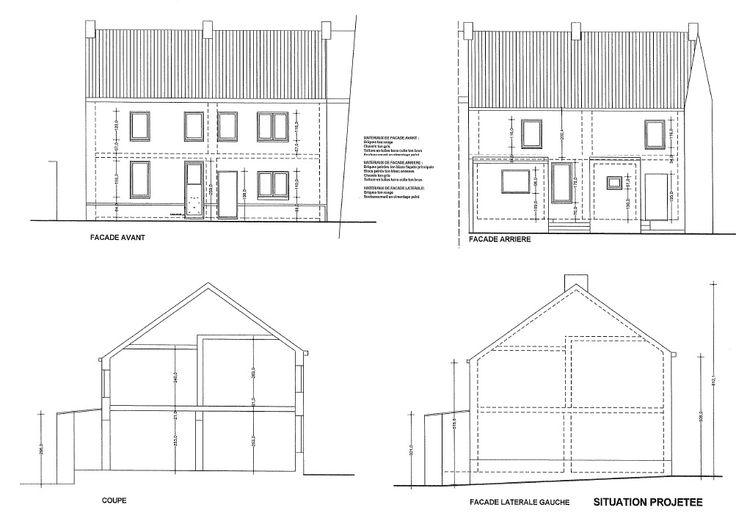
Avis aux investisseurs: ensemble de 2 maisons 2 chambres avec jardin et caves à rénover. Situées à proximité de l'aéroport, celles-ci offriront un excellent rapport locatif. Toiture en bon état et permis d'urbanisme en ordre pour la création de 2 logements. Superficie habitable: n°6: 80m² et n°8: 64m² - Plans disponibles sur demande - AGENCES S'ABSTENIR - Visites et infos au 0474/579.000 - Faire Offre à partir de 119.000 eur
Type vastgoed Huis
Prijs 119.000