Te koop Mogelijke projectgrond pal in het centrum ...

Beschrijving van   

Vergelijk realty's

Te koop Mogelijke projectgrond pal in het centrum van Hove

Mogelijke projectgrond pal in het centrum van Hove Mogelijke projectgrond pal in het centrum van Hove
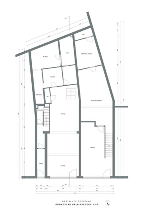
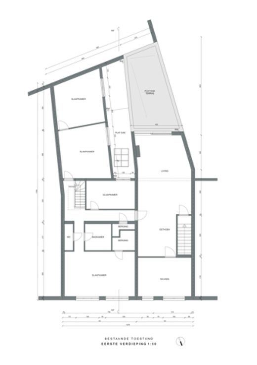
Mogelijke projectgrond pal in het centrum van Hove Algemeen:  - 2 aparte percelen - Totale perceeloppervlakte: ca. 210m² - Momenteel ingedeeld als handelspand met bovenliggende woonst - Volledig casco - 1 handelspand verhuurd tot oktober 2026 - Uitbreidingsmogelijkheden - Verschillende uitbatingsmogelijkheden: wonen en ook voor handel, dienstverlening, ambacht - Zeer interessant pand voor uitbating van groepspraktijken etc. Onmiddellijke omgeving: - Zeer vlotte bereikbaarheid naar Antwerpen en Brussel (trein of E19) - Pal in centrum van Hove met scholen, winkels en openbaar vervoer op wandelafstand - Voldoende parkeergelegenheid in nabije omgeving Stedenbouwkundige inlichtingen in aanvraag. Voor meer informatie kan u terecht op www.deboerenpartners.be.
Type vastgoed Huis
Prijs 500.000