Te koop Open bebouwing met garage en 3 ruime slpks

Beschrijving van   

Vergelijk realty's

Te koop Open bebouwing met garage en 3 ruime slpks

Open bebouwing met garage en 3 ruime slpks Open bebouwing met garage en 3 ruime slpks Open bebouwing met garage en 3 ruime slpks Open bebouwing met garage en 3 ruime slpks Open bebouwing met garage en 3 ruime slpks Open bebouwing met garage en 3 ruime slpks
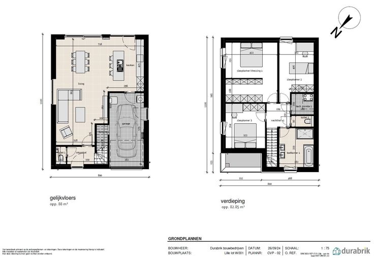
Futureproof open bebouwing op lot 1 in deze nieuwe residentieel gelegen verkaveling. De woning omvat ruime lichtrijke woonkamer met ingericht eilandkeuken en inpandige garage. Op de eerste verdieping zijn er 3 ruime slaapkamers waarvan één met mogelijkheid dressing, ingerichte badkamer met ligbad , douche en dubbele wastafel, apart wc en technische ruimte. De interieurafwerking van je huis gebeurt volledig volgens je persoonlijke wensen. Bespaar fors op je energiefactuur, dankzij het doorgedreven isolatiepakket, warmtepomp met vloerverwarming, ventilatiesysteem D en zonnepanelen. Samen met de regenwaterput van 10.000L voldoet deze woning dus aan alle normen voor de toekomst. Uniek aan dit nieuwbouwproject: voor elk perceel werd een woonconcept op maat ontworpen, dat perfect aansluit bij de troeven van de grond. Stel dat dit ontwerp je wel bevalt maar je liever op een ander lot wil bouwen, dan kan dit indien de bouwvoorschriften van dat lot het toelaten. Dit zorgt voor veel variatie binnen de verkaveling en uitgebreide keuzemogelijkheden op het vlak van indeling en stijl. We staan je hier graag in bij om de mogelijkheden te bekijken. Ontdek de overige ontwerpen op https://durabrik.immo/lille Voor meer info, contacteer je bouwadviseur: bel 09 280 60 60 of mail info@durabrik.be. We kunnen steeds eens afspreken in onze kijkwoning https://www.durabrik.be/nl/kijkwoningen/nijlen-zavelweg *beelden zijn indicatief Renovatieplicht: nee
Type vastgoed Huis
Prijs 502.500
Bewoonbare opp. 170
Aantal slaapkamers 3
Aantal badkamers 1