Te koop appartement

Beschrijving van   

Vergelijk realty's

Te koop appartement

appartement appartement appartement appartement appartement appartement appartement appartement appartement appartement appartement appartement
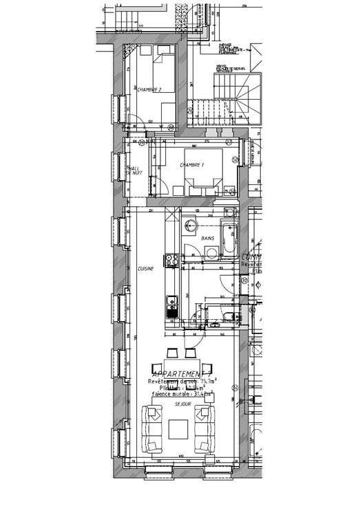
Sorry er is geen nederlandse vertaling beschikbaar. FLEURUS - Place Charles Gailly 1/3 : Superbe appartement récent, situé au 2ème étage d'un immeuble érigé au centre de la ville vous offrant toutes les commodités à proximité (transports en communs, commerces, écoles, axes autoroutiers, ..). Il se compose d'un hall, séjour, cuisine équipée (taque, hotte, four, frigo, évier, lave-vaisselle), salle de bains, WC séparé, deux chambres. D'un point de vue technique : chauffage central gaz, chaudière individuelle VAILLANT, châssis double vitrage PVC avec système de ventilation, PEB C - 195 kwh/m²/an - CU: 20160113007774! Prix : FAIRE OFFRE A PARTIR DE 159.000€ (sous réserve de l'acceptation du propriétaire)
Type vastgoed Appartement
Prijs 159.000
Bewoonbare opp. 75
Aantal slaapkamers 2
Aantal badkamers 1