Te koop Bouwgrond

Beschrijving van   

Vergelijk realty's

Te koop Bouwgrond

Bouwgrond Bouwgrond Bouwgrond
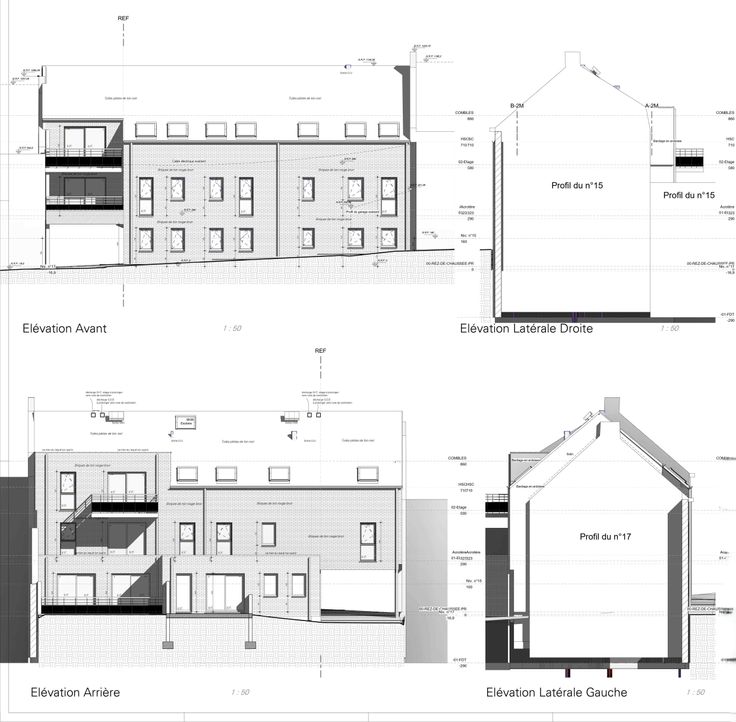
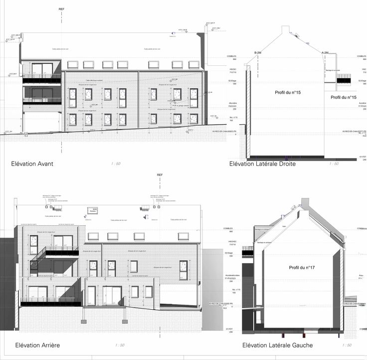
A Brugelette a quelques minutes de Pairi Daiza, Immaxe vous propose ce superbe projet de construction pour six appartements. Permis octroyé mais possibilité de diviser en plusieurs cellules (informations a prendre auprès de la commune de Brugellette) Avis aux investisseurs Airbnb, ce projet offre un très bon rendement. Dossier en agence.
Type vastgoed Grond
Prijs 399.000