Te huur Handelszaak

Beschrijving van   

Vergelijk realty's

Te huur Handelszaak

Handelszaak Handelszaak Handelszaak Handelszaak Handelszaak Handelszaak Handelszaak Handelszaak Handelszaak Handelszaak Handelszaak Handelszaak
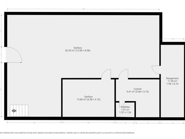
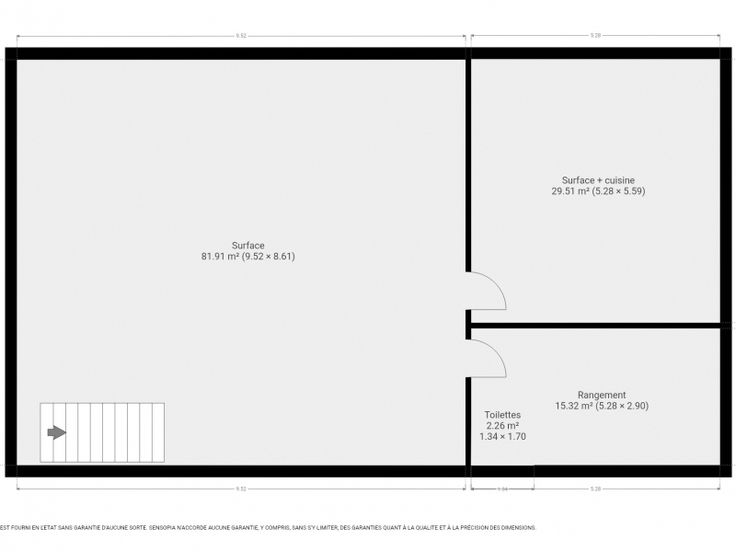
Marche-en-Famenne, à l'angle de 2 rues très passantes et proche des écoles, très belle surface commerciale de +/- 250m2 sur 2 niveaux. Excellente visibilité. Grandes vitrines. Libre en mars 2025. Loyer : 2250? hors charges
Type vastgoed Commercieel
Prijs 2.250
Bewoonbare opp. 250