Te koop Huis

Beschrijving van   

Vergelijk realty's

Te koop Huis

Huis Huis Huis Huis Huis Huis Huis Huis Huis Huis Huis Huis Huis Huis Huis Huis Huis Huis Huis Huis Huis
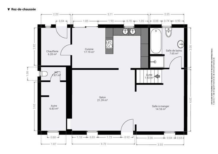
Réf.: 156. Découvrez cette charmante maison 3 façades à Blaugies bien située au calme! (Possibilité d'acquérir un garage en option). A l'intérieur, vous découvrirez une très charmante maison à rafraîchir. Elle se compose au rez-de-chaussée: d'un salon et une salle à manger donnant accès à la cuisine équipée, un local technique/ buanderie, un WC séparé, un débarras et une salle de bain (douche, baignoire, lavabo, WC). A l'étage: un hall de nuit desservant 2 chambres et un bureau (possibilité d'aménager une troisième chambre pour enfant). Grenier (combles).Lorsque le soleil est de retour, vous pourrez profiter de l'environnement calme sur votre terrasse dans un jardin entièrement clôturé et sans vis-à-vis. Divers: bonne toiture ,chauffage central gaz,... Bien actuellement loué! RC 374€ Faire offre à partir de 200.000,00€. CONTACTEZ ROBERTO AU 0487 973 170. Informations communiquées à titre indicatif et non contractuel. Les propriétaires se réservent le droit d'apprécier la hauteur et la qualité des offres. Nous sommes constamment à la recherche de nouveaux biens pour nos clients en attente, n'hésitez pas à nous contacter au 0499 924 999 pour UNE ESTIMATION GRATUITE SOUS 48H ET FAITE PAR LE PATRON EN PERSONNE. Concernant le choix de l'acquéreur; les critères de sélection du propriétaire ne sont pas uniquement le prix. Le choix reste à l'appréciation de ce dernier qui seul en décidera.
Type vastgoed Huis
Prijs 200.000
Aantal slaapkamers 2
Aantal badkamers 1