Te huur Uitstekend gelegen winkelpand in Maasmechelen

Beschrijving van   

Vergelijk realty's

Te huur Uitstekend gelegen winkelpand in Maasmechelen

Uitstekend gelegen winkelpand in Maasmechelen Uitstekend gelegen winkelpand in Maasmechelen Uitstekend gelegen winkelpand in Maasmechelen Uitstekend gelegen winkelpand in Maasmechelen Uitstekend gelegen winkelpand in Maasmechelen Uitstekend gelegen winkelpand in Maasmechelen Uitstekend gelegen winkelpand in Maasmechelen Uitstekend gelegen winkelpand in Maasmechelen
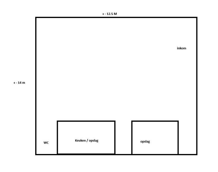
Dit commerciële pand bevindt zich op een strategische locatie in het hart van Maasmechelen, ideaal voor ondernemers die op zoek zijn naar een goed bereikbare en aantrekkelijke locatie. Het winkelpand heeft een oppervlakte van 180 m², waardoor er voldoende ruimte is voor diverse commerciële activiteiten, van retail tot showroom. Het pand beschikt over grote raampartijen en wordt verwarmd door ingebouwde plafondairco's. Kenmerken: -Grootte: 180 m² -EPC-label: B, wat duidt op een energiezuinige en milieuvriendelijke ruimte. -Parkeergelegenheid: Inclusief 2 parkeerplaatsen, wat zorgt voor extra gemak. -Onmiddellijk beschikbaar Met zijn centrale ligging biedt dit pand uitstekende zichtbaarheid en voetgangersverkeer, en is het goed bereikbaar voor zowel klanten als leveranciers. Ideaal voor ondernemers die willen profiteren van een toplocatie in Maasmechelen. Borg: 3 maanden + Plaatsbeschrijving kost Voor meer info bel 089 20 90 88 of mail huur@sensimmo.be.
Type vastgoed Commercieel
Prijs 990
Bewoonbare opp. 180