Te huur Magazijn

Beschrijving van   

Vergelijk realty's

Te huur Magazijn

Magazijn Magazijn Magazijn Magazijn Magazijn Magazijn Magazijn Magazijn Magazijn Magazijn
entrepot
Type vastgoed Commercieel
Prijs 6.500
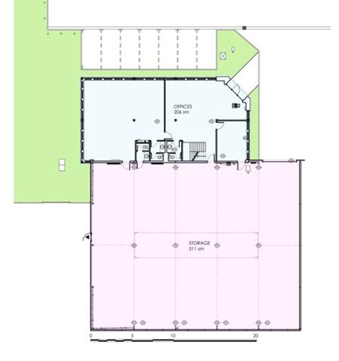
Bewoonbare opp. 923