Te koop Bescheiden energiezuinige woning op toplig...

Beschrijving van   

Vergelijk realty's

Te koop Bescheiden energiezuinige woning op topligging

Bescheiden energiezuinige woning op topligging Bescheiden energiezuinige woning op topligging Bescheiden energiezuinige woning op topligging Bescheiden energiezuinige woning op topligging Bescheiden energiezuinige woning op topligging
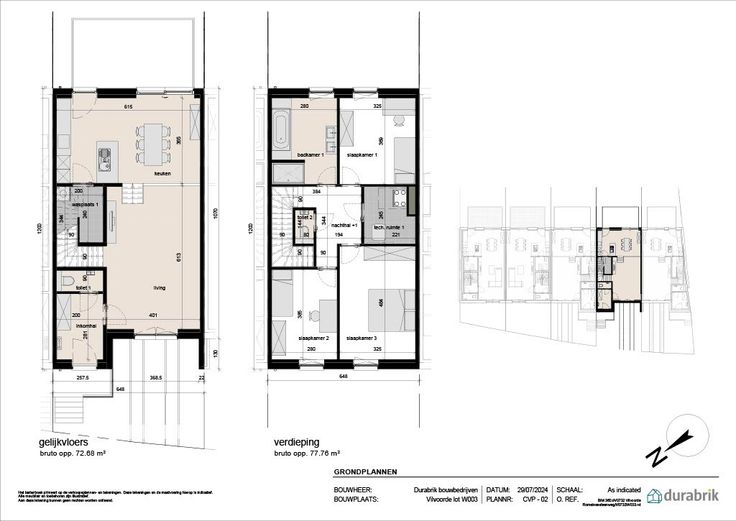
Deze gesloten bebouwing is uitstekend gelegen op een knooppunt van invalswegen en fietsautostrades naar onze hoofdstad. De woning heeft een modern uitzicht: een beige genuanceerde gevelsteen met donkergrijs buitenschrijnwerk en een plat dak vol zonnepanelen. Het perceel meet 193 m², de woonoppervlakte bedraagt 150 m². Op het gelijkvloers vinden we de inkomhal met apart toilet, de leefruimte met open keuken en een wasplaats. Via de vaste trap kom je op de eerste verdieping met 3 slaapkamers, de badkamer, inclusief douche, bad en dubbel lavabomeubel. Er is ook een apart toilet en technische ruimte voorzien. Er is ook een technische ruimte voorzien. Alle kamers  zijn voorzien van vloerverwarming. Deze wordt aangedreven door een ecologische warmtepomp en zonnepanelen waardoor we een negatief E-peil bereiken van maar liefst -21. Voor de woning is er plaats om de wagen te plaatsen. Weet ook dat je de afwerking van de woning volledig zelf kan bepalen onder professionele begeleiding van onze interieurvormgevers. De woning wordt instapklaar opgeleverd. De zuidoost gerichte tuin wordt afgeboord met draadafsluiting. Bij Durabrik ben je zeker van een vaste prijs. Voor meer info, contacteer onze bouwadviseur via 09 280 60 60 of mail naar info@durabrik.be. * Beelden en oppervlaktes zijn indicatief. Renovatieplicht: nee
Type vastgoed Huis
Prijs 509.000
Bewoonbare opp. 150
Aantal slaapkamers 3
Aantal badkamers 1