Te koop Energieneutrale gesloten bebouwing, rustig...

Beschrijving van   

Vergelijk realty's

Te koop Energieneutrale gesloten bebouwing, rustig gelegen

Energieneutrale gesloten bebouwing, rustig gelegen Energieneutrale gesloten bebouwing, rustig gelegen Energieneutrale gesloten bebouwing, rustig gelegen Energieneutrale gesloten bebouwing, rustig gelegen Energieneutrale gesloten bebouwing, rustig gelegen Energieneutrale gesloten bebouwing, rustig gelegen Energieneutrale gesloten bebouwing, rustig gelegen Energieneutrale gesloten bebouwing, rustig gelegen
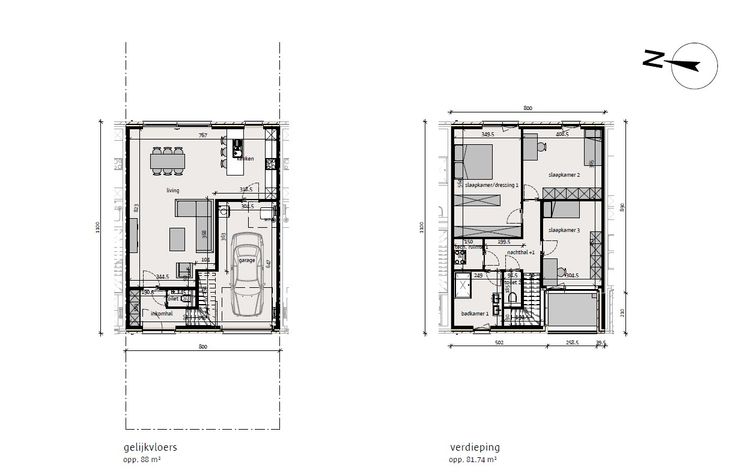
Lot 102 is een gesloten bebouwing op een grondoppervlakte van 203 m² en met een totale bewoonbare oppervlakte van 160 m². Moderne bouwstijl : 2 bouwlagen met plat dak. GELIJKVLOERS: inkom, wc, ruime living, open keuken met eiland, ruime garage met berging. Mooie tuin. EERSTE VERDIEPING: 1 grote slaapkamer voor de ouders, 2 ruime kinderkamers, ingerichte badkamer met inloopdouche, ligbad, badkamermeubel met dubbele lavabo, aparte wc en technische ruimte. Deze woning heeft aan de slaapkamers van de ouders een groot zonneterras. Deze woning wordt volledig afgewerkt aangeboden met ingerichte keuken en badkamer, bevloering en vloerverwarming. Energieneutrale woning (E -8) dankzij doorgedreven isolatiepakket, ventilatiesysteem D, ruim pakket zonnepanelen en warmtepomp. Dit betekent niet enkel grote besparingen op je energiefactuur, maar ook 5 jaar geen onroerende voorheffing én betere voorwaarden voor je lening.  Deze woning wordt gebouwd in een nieuw woonproject in het centrum van Sijsele, meer bepaald naast het woonzorgcentrum De Stek. Rustig gelegen en veel groene ruimte aanwezig. Goeie mobiliteit met winkels, scholen en ontspanningsmogelijkheden vlakbij. Download de brochure op https://durabrik.immo/sijsele-nieuwe-weg. Voor meer informatie bel ons gratis nummer 09 280 60 60 of mail info@durabrik.be Renovatieplicht: onbekend
Type vastgoed Huis
Prijs 375.000
Bewoonbare opp. 169
Aantal slaapkamers 3
Aantal badkamers 1