Te koop Energieneutrale moderne nieuwbouw in Desse...

Beschrijving van   

Vergelijk realty's

Te koop Energieneutrale moderne nieuwbouw in Dessel (E-0)

Energieneutrale moderne nieuwbouw in Dessel (E-0) Energieneutrale moderne nieuwbouw in Dessel (E-0) Energieneutrale moderne nieuwbouw in Dessel (E-0) Energieneutrale moderne nieuwbouw in Dessel (E-0)
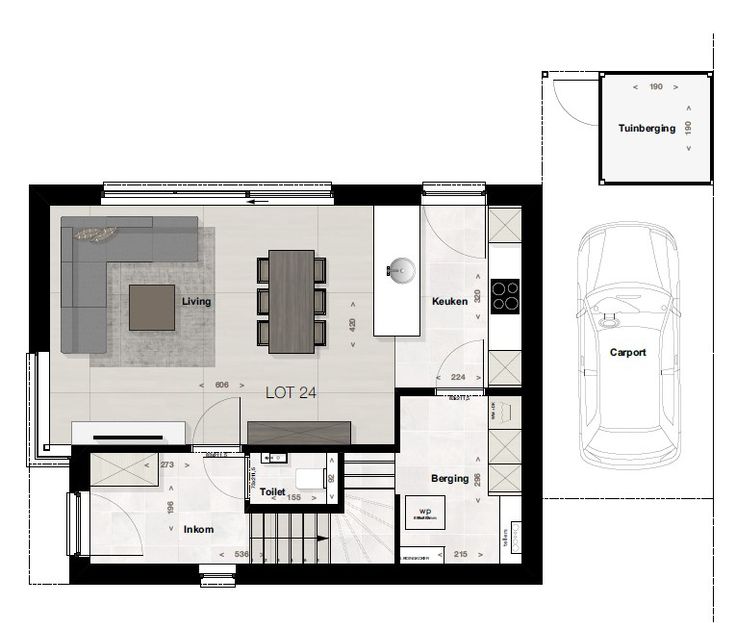
Op zoek naar een moderne woning in een gezinsvriendelijke woonbuurt in Dessel? De woning is splinternieuw en scoort met e-peil E0 beter dan de wettelijk vereiste energienormen voor nieuwbouw. Hierdoor bespaar je niet alleen op je maandelijkse elektriciteits- en verwarmingsfactuur, maar betaal je de komende 5 jaar ook geen kadastraal inkomen.  De woning kreeg een luxe uitstraling, zowel vanbinnen als vanbuiten. Met 3 slaapkamers, een carport en gelegen op een perceel van 3 are in een doodlopende straat, biedt deze woning alle comfort. Bij binnenkomst vind je een ruime inkomhal, een prachtige leefruimte die baadt in natuurlijk licht en aansluitend aan de open keuken een praktische berging. Gelegen op de toplocatie Hameldijk in Dessel, geniet je van de nabijheid van natuurgebieden en kanalen op wandel- en fietsafstand, terwijl toegangswegen zoals de E313 en E34 gemakkelijk bereikbaar zijn. Alle benodigde faciliteiten zijn binnen handbereik in deze autoluwe buurt. Geïnteresseerd? Vul het contactformulier in voor meer informatie of neem contact op met Kolmont via T. +32 (0)11 211 211. Onze bouwadviseurs helpen je graag verder.   Neem vrijblijvend een kijkje op onze website via kolmont.com.  Renovatieplicht: onbekend
Type vastgoed Huis
Prijs 354.837
Bewoonbare opp. 125
Aantal slaapkamers 3
Aantal badkamers 1