Te koop Huis

Beschrijving van   

Vergelijk realty's

Te koop Huis

Huis Huis Huis Huis Huis Huis Huis Huis Huis Huis Huis
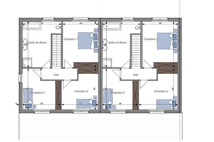
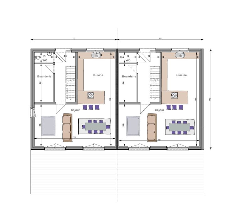
Maisons Compère vous propose vos nouvelles maisons 2 et 3 façades à l’architecture contemporaine. Les constructions sont entièrement terminées, prêtes à vivre et disponibles immédiatement. Elles sont équipées d’une pompe à chaleur avec chauffage sol au rez, de parquet à l’étage. Elles se composent au rez de chaussée d’un séjour de 29m², d’une cuisine de 15m², d’une buanderie de 5.3m² et d’un wc. L’étage comprend 3 chambres (2 de 12m² et 1 de 14m²) et d’une salle de bain de 13m². Elles disposent d’un jardin et d’un double emplacement de parking. Prix de la construction avec terrain à partir de 295000€ hors frais et raccordements (Terrain soumis aux frais d’enregistrement et construction à la TVA) Le prix indiqué est ferme, définitif et sans indexation. Idéalement située, non loin de toutes proximités, des grands axes et des transports en commun. Vous disposez ainsi de toutes les facilités (commerces, école et centre commercial) et pourrez profiter d’un cadre de vie rural et reposant. Intéressé par ce projet ? Prenez rendez-vous dès à présent avec Monsieur Mariani (IPI 103.174) au 0475/23.62.76 Le prix est ferme, définitif
Type vastgoed Huis
Prijs 315.000
Bewoonbare opp. 140
Aantal slaapkamers 3