Te koop Appartement

Beschrijving van   

Vergelijk realty's

Te koop Appartement

Appartement Appartement Appartement Appartement Appartement Appartement Appartement Appartement Appartement Appartement Appartement
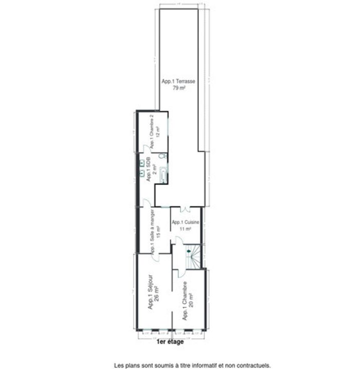
Appartement 2 chambres avec une grande terrasse de 79 m² – Idéal investissement ou premier achat ! Vous recherchez un bien avec un extérieur spacieux ? Cet appartement 2 chambres à rénover, situé au 1er étage d’un immeuble comprenant 3 appartements et un rez commercial, offre une terrasse privée de 79 m², un atout rare en ville ! Actuellement loué à 500 €/mois hors charges, cet appartement est une excellente opportunité d’investissement ou un choix parfait pour un premier achat. Points forts : - Grande terrasse privative de 79 m², idéale pour aménager un espace détente, repas ou jardin urbain - 2 chambres spacieuses - Grand séjour lumineux - Proximité immédiate des commerces, transports et écoles Compteur électrique séparé et chauffage au mazout via une citerne commune (charges mensuelles de 180€ incluant chauffage et eau) Composition de l’appartement : Cuisine Salle à manger Grand séjour lumineux Salle de bain avec douche Deux chambres spacieuses Terrasse de 79 m² (exceptionnel en centre ville) Un espace extérieur aussi vaste est une véritable rareté ! Ne laissez pas passer cette opportunité et contactez-nous dès maintenant pour plus d’informations ou pour organiser une visite.
Type vastgoed Appartement
Prijs 119.000
Bewoonbare opp. 82
Aantal slaapkamers 2
Aantal badkamers 1