Te koop Stekene, Burg. Abdon Heyselaan/Zuster Eduardalaan - Fase ...
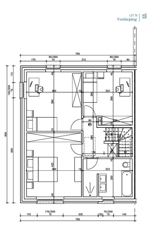
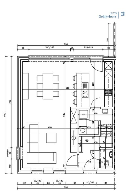
VASTE PRIJS - ENERGIEZUINIG - ALL IN AFWERKING OP MAAT! In deze gezellige verkaveling vlakbij het kloppende hart van Stekene worden 8 nieuwbouwwoningen gebouwd. Deze halfopen nieuwbouwwoning (lot 79) wordt gebouwd op een perceel van 187m2. De woning heeft een strak modern ontwerp en geniet van een optimale planindeling! Op het gelijkvloers is er een inkom met gastentoilet, een open leefruimte en een praktische wasplaats. Op de eerste verdieping bevinden zich 3 slaapkamers en een badkamer met bad + inloopdouche. De praktische zolder is toegankelijk met een uitschuifbare zoldertrap. De woning is voorzien van ULTRA energiezuinige technieken zoals een warmtepomp met vloerverwarming, regenwaterrecuperatie van 10.000L, ventilatie met warmterecuperatie, super isolerende beglazing, zonnepanelen,... Kom jij hier binnenkort thuis? Contacteer de bouwadviseur Ewout om meer informatie te ontvangen: 0497 588 888 - contact@huysmanbouw.be
Renovatieplicht: onbekend