Te koop Appartement

Beschrijving van   

Vergelijk realty's

Te koop Appartement

Appartement Appartement Appartement Appartement Appartement Appartement Appartement Appartement Appartement Appartement Appartement Appartement Appartement Appartement
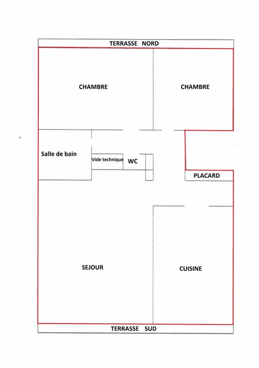
SCHAERBEEK - RTBF (limite Evere et Woluwe-St-Lambert) – pour habitation ou investissement - av. Colonel Bourg - au 5ième étage d’un immeuble moderne (construction 1976) et de standing (possibilité de poursuivre la location avec locataire actuel ) - bel appartement traversant (Sud – Nord) , très lumineux de 89 m² se composant d'un hall d'entrée avec débarras/vestiaire + placard penderie – WC séparé - cuisine équipée (meuble mural , double évier, lave-vaisselle , frigo , cuisinière et hotte) , agréable séjour avec terrasse plein sud, 2 chambres avec terrasse, salle de bains (meuble avec évier et baignoire ), et cave .- Chauffage au gaz : PEB : C (115 Kwh/m²/an) –Revêtement : parquet dans le séjour , dans les chambres et couloirs – carrelages (cuisine et salle de bain). Transport : les lignes de bus 21(Aéroport Gare de Luxembourg ,79 (Kraainem  Schumann), 80 (Maes  Porte de Namur ) s’arrêtent au pied de l’immeuble – métro Diamant à proximité. Libre à l'acte – Agences s’abstenir - Informations => GSM 0497 30 10 07 Visites => GSM : 0497 14 89 64
Type vastgoed Appartement
Prijs 280.000
Bewoonbare opp. 86
Aantal slaapkamers 2
Aantal badkamers 1