Te koop Bouwgrond OB - 8a61ca

Beschrijving van   

Vergelijk realty's

Te koop Bouwgrond OB - 8a61ca

Bouwgrond OB - 8a61ca Bouwgrond OB - 8a61ca Bouwgrond OB - 8a61ca Bouwgrond OB - 8a61ca Bouwgrond OB - 8a61ca Bouwgrond OB - 8a61ca Bouwgrond OB - 8a61ca
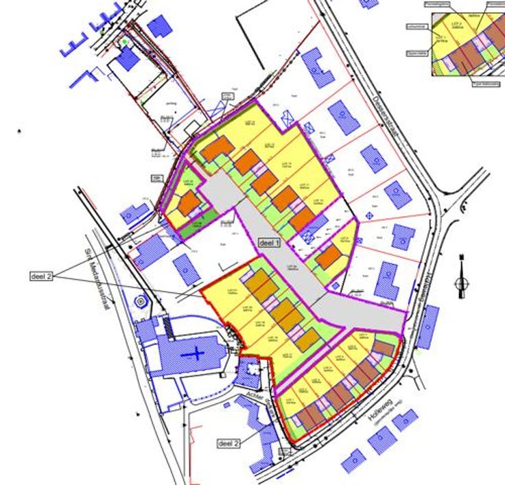
VERKAVELING bestaande uit 19 mooie bouwgronden, zeer rustig gelegen in nieuw gecreëerde wijk zonder doorgaand verkeer. Hoog en droog gelegen achter de Sint-Medarduskerk, het pittoreske centrum van Vreren, een bouwrijpe verkaveling met volledig nieuw aangelegde wegen met verlichting en voorzien van alle nutsvoorzieningen. Enkel bouwpercelen voor open en half open bebouwingen in aanbieding, geen gesloten bebouwingen, telkens voorzien van een voortuin en een mooie achtertuin waar terras aan living mogelijk is. U kan kiezen voor een inpandige garage of voor een carport langs uw woning. De bouwgronden hebben als hoofdbestemming residentiële ééngezinswoningen, als nevenbestemming worden enkel kleinschalige vrije beroepen of diensten toegelaten. Kleine constructies in de tuin worden ook toegelaten (tuinberging, hondenhok, hobbyserre, ...). Geschikt voor moderne bouwstijl in baksteen en met plat dak, ideaal om energiezuinig te bouwen met zonnepanelen en integratie van alle laatse nieuwe technieken. Groendaken zijn ook toegestaan. De 7 bouwgronden die grenzen aan de Holleweg aanvaarden een meer traditionele bouwstijl met hellend dak. Kortom een waaier aan mogelijkheden en keuzes die u kan maken om van van uw droom(woning) werkelijkheid te maken. Voor meer info contacteer ons kantoor 012 744 844 of mail naar info@goed-gevonden.be
Type vastgoed Grond
Prijs 110.000