Te koop Huis

Beschrijving van   

Vergelijk realty's

Te koop Huis

Huis Huis Huis Huis Huis Huis Huis Huis Huis Huis Huis Huis Huis Huis
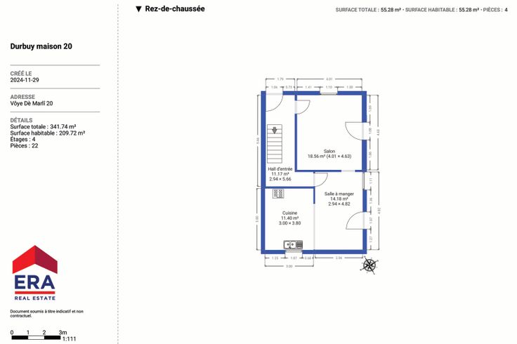
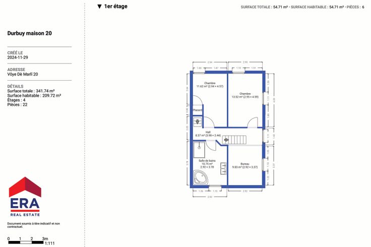
L’agence immobilière ERA B-LUX a le plaisir de vous présenter cette magnifique maison 3 façades, située dans le paisible village de Heyd. Implantée sur un terrain de 7 ares, elle offre un cadre de vie alliant calme et sérénité. Idéalement située, cette maison se trouve à seulement 5 minutes de Barvaux et 10 minutes de Durbuy, vous permettant ainsi de profiter de toutes les commodités à proximité tout en préservant votre tranquillité. Elle dispose également d’un vaste jardin orienté plein sud, parfait pour savourer pleinement les belles journées ensoleillées. Intéressé ?N’hésitez pas à contacter l’agence immobilière ERA B-LUX au 084/311.888.
Type vastgoed Huis
Prijs 219.000
Bewoonbare opp. 210
Aantal slaapkamers 4
Aantal badkamers 1