Te koop Bouwgrond

Beschrijving van   

Vergelijk realty's

Te koop Bouwgrond

Bouwgrond Bouwgrond Bouwgrond Bouwgrond Bouwgrond Bouwgrond Bouwgrond Bouwgrond Bouwgrond Bouwgrond Bouwgrond Bouwgrond
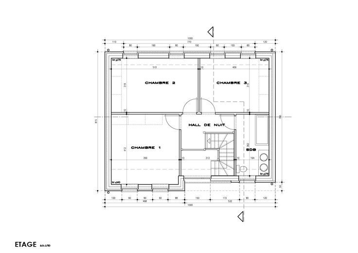
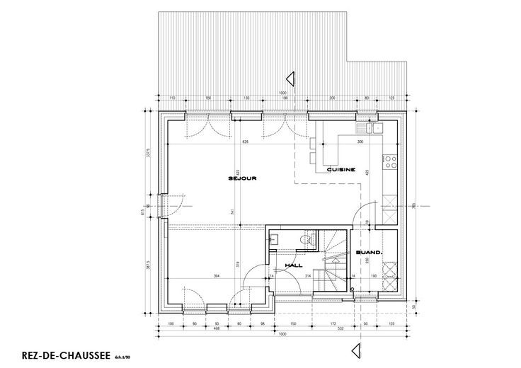
Ceci est une idée de projet, avec une liberté totale de modification pour construire la maison de vos rêves. Nous vous proposons ce projet sur un superbe terrain à bâtir, situé dans un cadre campagnard, dans le charmant village de Spy. Ce terrain possède une superficie de 1178 m², une façade de 18 mètres et une profondeur de 62 mètres. L'emplacement de ce terrain est très avantageux, à seulement 3min d'un arrêt de bus et à moins de 5 minutes des commodités. De plus, l'accès à l'autoroute E42 est à moins de 2 minutes, ce qui permet de rejoindre liège, Charleroi et Bruxelles en un rien de temps. Ce terrain vous est proposé avec un projet de construction d'une maison 4 façades. Description du projet proposé, Maison 4 façades de 150m2 : Au rez-de-chaussée, vous serez accueilli par un hall d'entrée qui mène à un séjour lumineux, accompagné d'une cuisine ouverte, d'une buanderie et d'un WC. À l'étage, un hall de nuit vous dirigera vers une belle salle de bain et 3 chambres spacieuses, toutes conçues pour vous offrir un confort inégalé. Prix : terrain + projet de construction : 331 095€ Hors frais Le prix est donné à titre indicatif et pourra être modifié en fonction des ajustements apportés au projet. Pour plus de renseignements, nous restons disponibles durant les heures de bureau.
Type vastgoed Grond
Prijs 141.000