Te koop Huis

Beschrijving van   

Vergelijk realty's

Te koop Huis

Huis Huis Huis Huis Huis Huis Huis Huis Huis Huis Huis Huis Huis Huis Huis Huis Huis Huis Huis Huis Huis Huis Huis Huis Huis Huis Huis
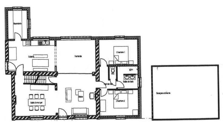
Maison d'habitation plain-pied en rénovation, à l’état de gros œuvre couvert fermé. Elle comprend, au sous-sol : une cavette ; au rez-de-chaussée : un grand séjour avec un bow-window donnant sur le jardin, une salle à manger, une cuisine ouverte, une buanderie, un hall de nuit donnant sur deux chambres, une salle de bain (douche italienne prévue) et un WC séparé. Possibilité d’aménager un étage. Le bien comprend également un garage, un grand jardin avec un accès par un passage latéral. Divers : PEB : catégorie G ; consommation : 1.403 kWh/m².an, 235.787 kWh/an. Electricité à finir et chauffage à installer (conduit prévu pour installer une cheminée). Superficie cadastrale : 3350 m² RC : 208 € Faire offre à partir de 160.000€
Type vastgoed Huis
Prijs 160.000
Bewoonbare opp. 168
Aantal slaapkamers 2
Aantal badkamers 1