Te huur Nieuw opgeleverde commerciële ruimte te hu...

Beschrijving van   

Vergelijk realty's

Te huur Nieuw opgeleverde commerciële ruimte te huur aan de Italiële

Nieuw opgeleverde commerciële ruimte te huur aan de Italiële Nieuw opgeleverde commerciële ruimte te huur aan de Italiële Nieuw opgeleverde commerciële ruimte te huur aan de Italiële Nieuw opgeleverde commerciële ruimte te huur aan de Italiële Nieuw opgeleverde commerciële ruimte te huur aan de Italiële Nieuw opgeleverde commerciële ruimte te huur aan de Italiële
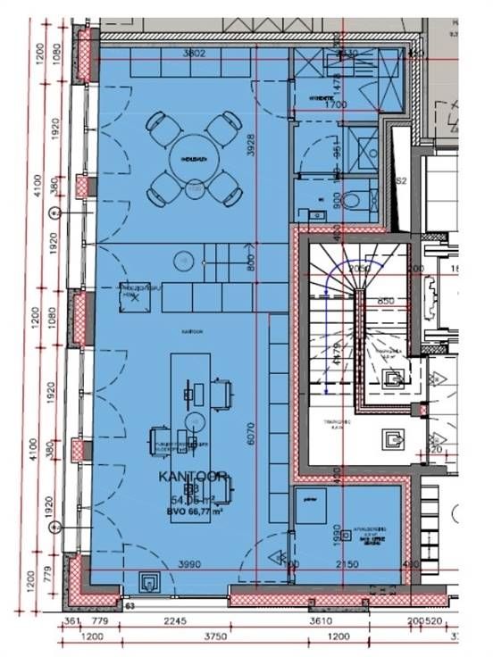
Duurzame en instapklare commerciële ruimte met hoogwaardige afwerking, voorzien van airco, vloerverwarming, verlichting, kitchenette, bergruimte en privatief sanitair. De gemeenschappelijke kosten bedragen slechts 50 EUR/maand en een ondergrondse parkeerplaats is optioneel bij te huren voor 125 EUR excl. btw/maand. De locatie is uitstekend bereikbaar met meerdere bushaltes binnen 350 meter en een Vélo station op vijf minuten wandelen.
Type vastgoed Commercieel
Prijs 1.200
Bewoonbare opp. 65