Te koop Burelen verdieping

Beschrijving van   

Vergelijk realty's

Te koop Burelen verdieping

Burelen verdieping Burelen verdieping Burelen verdieping Burelen verdieping Burelen verdieping Burelen verdieping Burelen verdieping Burelen verdieping Burelen verdieping Burelen verdieping Burelen verdieping Burelen verdieping Burelen verdieping Burelen verdieping Burelen verdieping
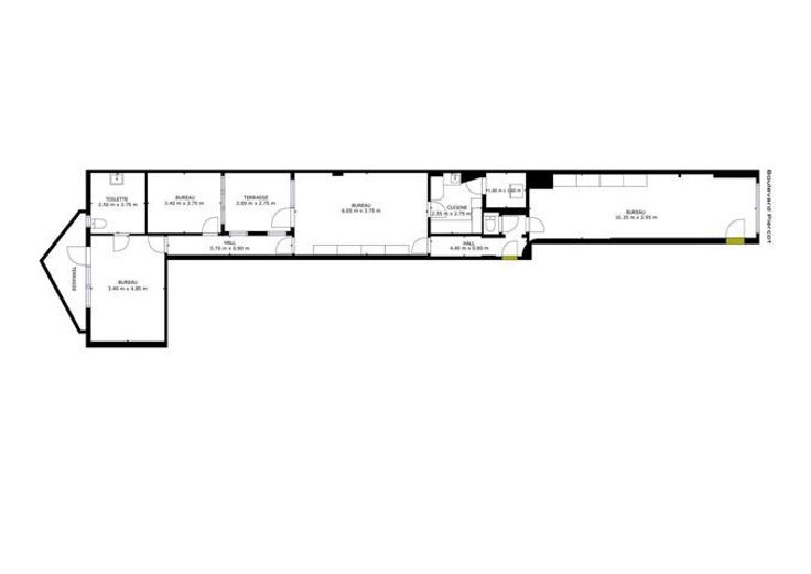
Trevi Liège a le plaisir de vous proposer à la vente ce bel appartement rénové de +- 140 m² situé Boulevard Piercot, proche du centre ville et des axes autoroutiers. Anciennement utilisé comme bureaux, celui-ci est composé comme suit: une première pièce de 30 m² dotée d'une entrée indépendante parfaitement adaptée pour une profession libérale, que ce soit un cabinet de consultation, un bureau ou un atelier, cet espace peut également être réaménagée selon les besoins de l'acquéreur, pour en faire un espace de vie confortable, un hall d'entrée, une WC, une salle à manger, une cuisine, une buanderie, un hall de nuit, une salle de douche et 2 chambres. Le bien dispose également d'une cour privative. Le bâtiment est sécurisé avec un accès contrôlé pour une sécurité optimale, système d'alarme également à disposition. Porte d'entrée antieffraction, luminaires et mobilier sur mesure. Prix de vente: 265.000€ sous réserve d'acceptation du propriétaire. Cet appartement de plain-pied est idéal pour ceux qui cherchent à allier vie professionnelle et personnelle, ne manquez pas cette occasion unique! Contactez-nous dès maintenant pour organiser une visite. Informations données à titre indicatif et non contractuelles. Cette annonce ne constitue pas une offre. Plus d'infos sur www.treviliege.be
Type vastgoed Commercieel
Prijs 265.000
Bewoonbare opp. 140