Te koop Villa

Beschrijving van   

Vergelijk realty's

Te koop Villa

Villa Villa Villa Villa Villa Villa Villa Villa Villa Villa Villa Villa Villa Villa Villa Villa Villa Villa Villa Villa Villa Villa Villa Villa Villa Villa Villa Villa Villa
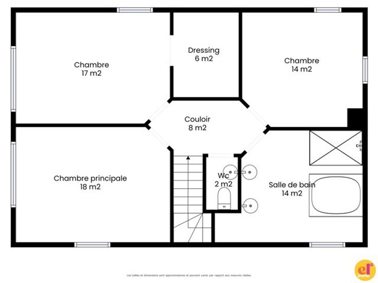
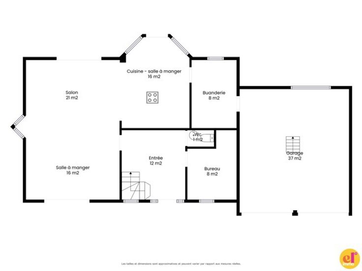
El'immo a le plaisir de vous présenter cette MAGNIFIQUE VILLA 4 FAÇADES avec des matériaux de qualités ! POSSIBILITÉ PROFESSION LIBÉRALE !! MAISON PRESQUE AUTONOME !!! Elle est composée comme suit : RDC : Un Hall d'Entrée (12) - Un Bureau (8) - Un WC ind. (1) - Un Salon (21) - Une Salle à manger (16) et Cuisine équipée avec frigo, taque, hotte, évier, four, four micro-onde, cave à vin (16) - Buanderie (8) - Garage 2 voitures et coins rangement (37) 1er étage : Hall de nuit (8) - 3 Chambres (18-17-14) - Un Dressing (6) - Un Wc ind. (2) - Une Salle de bain avec douche, baignoire et double vasque (14) 2e étage : 2 Greniers accessibles par le Dressing 40m2 et un 3e Grenier rangement accessible par le garage de 20m2 La Maison dispose d'un JARDIN de 800m2, d'une TERRASSE de 50m2 situé OUEST, d'un GARAGE 2 voitures de 37m2 et un PARKING à l'avant avec minimum 8 emplacements. Le bien se trouve à proximité des commerces et des commodités accès rapide à l'autoroute et hôpitaux !! Aspects techniques : - Chauffage Central mazout - Pompe à chaleur AIR-AIR - Électricité : CONFORME à l'acte ! - Toiture ok : 1999 - 40 PANNEAUX PHOTOVOLTAÏQUES !! - Châssis : Double Vitrage PVC avec antieffraction - RC : 1192 € - PEB : B - 114 kWh/m²/an - 20 978 kWh/an - 20241113013170 Vous souhaitez visiter cette maison ? N'hésitez pas à nous contacter au 0496304508 ou par e-mail : demande@el-immo.be
Type vastgoed Huis
Prijs 449.500
Bewoonbare opp. 225
Aantal slaapkamers 3
Aantal badkamers 1