Te koop Bouwgrond

Beschrijving van   

Vergelijk realty's

Te koop Bouwgrond

Bouwgrond Bouwgrond Bouwgrond Bouwgrond Bouwgrond
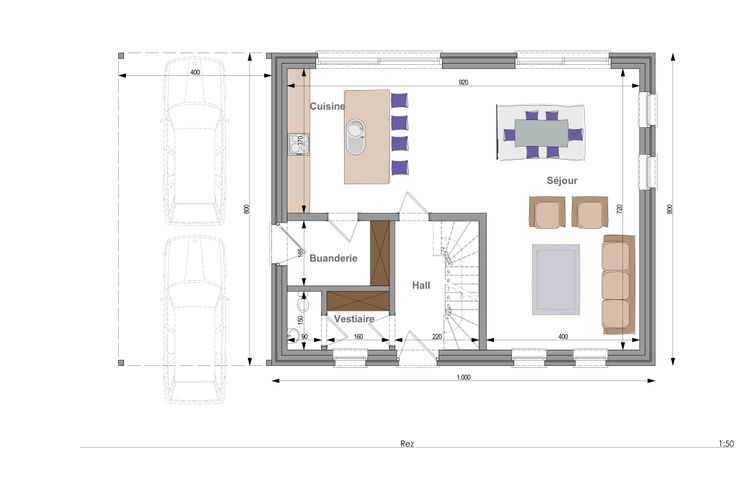
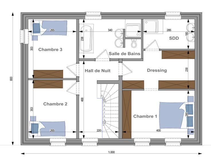
C'est à Grâce Hollogne dans le petit village de Fexhe le haut Clocher, proche de toutes commodités : Ikéa, pharmacies, écoles, centre commercial Roua et à 5 minutes de l'autoroute reliant les plus grandes villes, que Maisons Compère, vous propose cette magnifique maison 4 façades avec carport* en option. Sur un terrain de 6 ares, la maison se compose : Au rez-de-chaussée, sur une surface totale de 80 m², d'une cuisine et d'un séjour ouvert, d'une buanderie, d'une terrasse de 25 m² et d'un carport* en option de 34m². A l'étage, vous trouverez 3 chambres dont une avec un dressing et d'une salle de bain. Prix : 339.000,00 € (comprenant le terrain + la construction hors frais) Intéressé par ce projet ? Nous restons joignable durant les heures de bureau au 0476/37 28 25 Le prix indiqué est ferme, définitif et sans indexation, les images sont non contractuelles.
Type vastgoed Grond
Prijs 339.000