Te koop Bouwgrond

Beschrijving van   

Vergelijk realty's

Te koop Bouwgrond

Bouwgrond Bouwgrond Bouwgrond Bouwgrond Bouwgrond
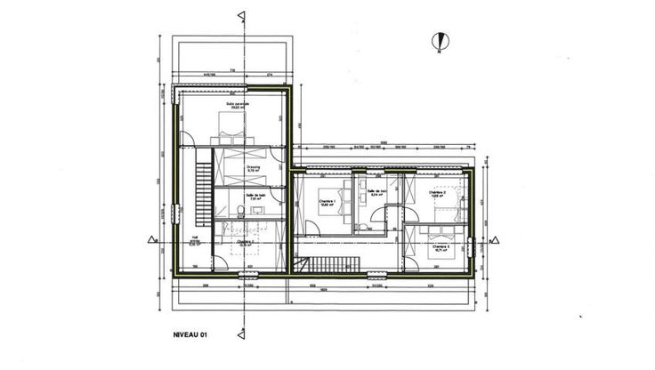
À VENDRE PAR ESPACE IMMOBILIER – Terrain avec permis pour construction de deux habitations jumelées Adresse : Allée des Chênes, 6280 Gerpinnes (parcelle section A n°313R49). Caractéristiques du bien : - Superficie du terrain : 9 ares 20 ca. - Permis octroyé : 1. Construction de deux habitations jumelées. 2. Type de construction : rez-de-chaussée + 1 étage, à toiture plate. 3. Volume en forme de "L" : - Logement 1 (gauche) : situé sur la profondeur de la construction. - Logement 2 (droite) : situé sur la largeur de la construction. 4.Plans et permis disponibles sur demande. Prix de vente : 210.000 € (terrain + permis), honoraires d’agence inclus. Revenu cadastral en attente. Conditions de vente à discuter. Toutes les offres reçues sont soumises à l'acceptation du propriétaire. Les superficies sont mentionnées à titre indicatif. Publicité à caractère non contractuel.
Type vastgoed Grond
Prijs 210.000