Te koop Opbrengsteigendom

Beschrijving van   

Vergelijk realty's

Te koop Opbrengsteigendom

Opbrengsteigendom Opbrengsteigendom Opbrengsteigendom Opbrengsteigendom Opbrengsteigendom Opbrengsteigendom Opbrengsteigendom Opbrengsteigendom Opbrengsteigendom Opbrengsteigendom Opbrengsteigendom Opbrengsteigendom
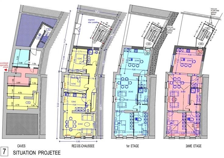
Sorry er is geen nederlandse vertaling beschikbaar. INNOV'EXPERT immobilière vous invite à venir découvrir ce bel immeuble vendu casco, avec permis d'urbanisme datant de juillet 2024 pour la création de 3 logements. Le bâtiment est idéalement situé sur la place du Marché à Fosses-la-Ville, commune en plein essor marquée par une croissance rapide dans les secteurs du commerce et de l'immobilier. Après travaux et suivant permis, le bien se composera d'un appartement 2 chambres en rez-de-chaussée de +/- 80 m2 et de deux appartements 2 chambres de +/- 85 m2 au 1er et 2ème étage. RC actuel : 594 eur. Belle opportunité à ne pas manquer, n'hésitez pas à nous contacter au 081 84 90 57
Type vastgoed Appartement
Prijs 149.000
Bewoonbare opp. 250
Aantal slaapkamers 6
Aantal badkamers 3