Te huur Kantoorruimten te huur in het centrum van ...

Beschrijving van   

Vergelijk realty's

Te huur Kantoorruimten te huur in het centrum van Brussel

Kantoorruimten te huur in het centrum van Brussel Kantoorruimten te huur in het centrum van Brussel Kantoorruimten te huur in het centrum van Brussel Kantoorruimten te huur in het centrum van Brussel Kantoorruimten te huur in het centrum van Brussel Kantoorruimten te huur in het centrum van Brussel
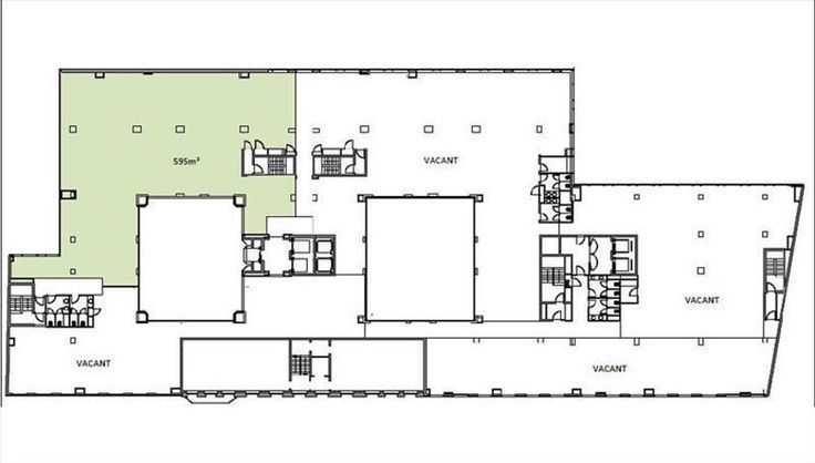
Kantoren te huur met een ideale ligging in het hart van het centrum van Brussel, tussen de Kruidtuin en het Koninklijk Park.  Onmiddellijke nabijheid van het Centraal Station en het openbaar vervoer. Tal van faciliteiten, winkels, restaurants en cafés in de buurt. Parking inside: 2.000 €/plaats/jaar.
Type vastgoed Commercieel
Prijs 9.874
Bewoonbare opp. 697