Te koop Klassieke woning met ruime living

Beschrijving van   

Vergelijk realty's

Te koop Klassieke woning met ruime living

Klassieke woning met ruime living Klassieke woning met ruime living
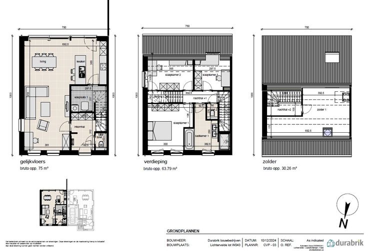
Lot 43 is een halfopen bebouwing in de klassieke stijl. GELIJKVLOERS : inkom, wc, zeer ruime living (35 m²) met open keuken en ruime berging. EERSTE VERDIEPING: 3 ruime slaapkamers, aparte wc, badkamer ingericht met ligbad, inloopdouche en badkamermeubel met dubbele lavabo, 2de vaste trap naar de zolder. Ruime zolder (30m²) die diverse mogelijkheden biedt : 4de slaapkamer, hobbyruimte of bureaugedeelte. Deze woning ligt in een nieuw woonproject zonder doorgaand verkeer. Op fietsafstand van het station van Lichtervelde, vlotte verbinding naar Torhout en Roeselare en nabij de oprit van de E403. De woningen in deze verkaveling worden aangeboden met ingerichte badkamer, bevloering en keuken. Energieneutrale woning (E -22) door doorgedreven isolatiepakket, ventilatiesysteem D, zonnepanelen, vloerverwarming en warmtepomp. Prijs excl. btw en kosten. Download de brochure op https://durabrik.immo/lichtervelde-leysafortstraat  Bij Durabrik ben je zeker van een vaste prijs. Geen budgettaire verrassingen dus tijdens je bouwtraject. Heb je vragen? Contacteer dan je bouwadviseur via 09/280.60.60. of mail naar info@durabrik.be. Inspiratie opdoen? Bezoek onze kijkwoning in Roeselare. * Beelden en oppervlaktes zijn indicatief.   Renovatieplicht: nee
Type vastgoed Huis
Prijs 381.500
Bewoonbare opp. 169
Aantal slaapkamers 3
Aantal badkamers 1