Te huur Polyvalent bedrijfsgebouw te Wuustwezel

Beschrijving van   

Vergelijk realty's

Te huur Polyvalent bedrijfsgebouw te Wuustwezel

Polyvalent bedrijfsgebouw te Wuustwezel Polyvalent bedrijfsgebouw te Wuustwezel Polyvalent bedrijfsgebouw te Wuustwezel Polyvalent bedrijfsgebouw te Wuustwezel Polyvalent bedrijfsgebouw te Wuustwezel Polyvalent bedrijfsgebouw te Wuustwezel
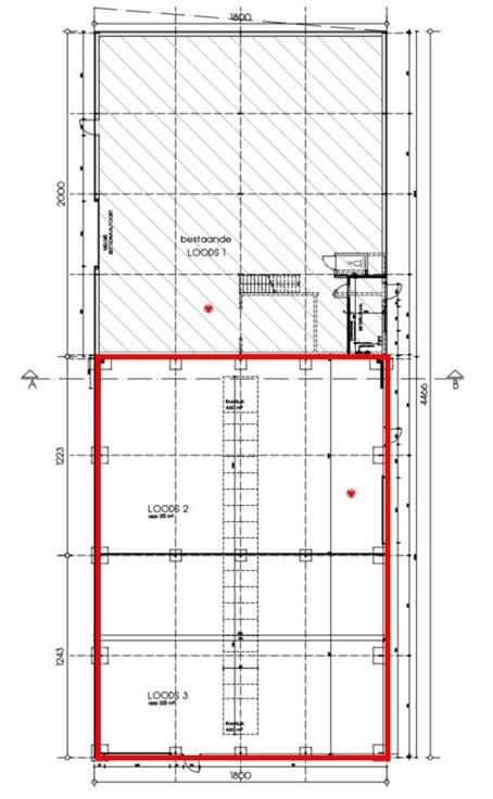
Polyvalente KMO-unit gelegen nabij de Kalmthoutsesteenweg (IZ) te Wuustwezel. De site is volgens het vigerende gewestplan gelegen in een zone bestemd voor Ambachtelijke Bedrijven en KMO's (licht paars). Detailhandel is dus niet mogelijk. De site is uitstekend bereikbaar via de E19 - Breda, afrit 3 Brecht/Wuustwezel. De unit beschikt over een totale oppervlakte van ca. 440 m² met meerdere parkeerplaatsen vooraan de site.
Type vastgoed Commercieel
Prijs 1.866
Bewoonbare opp. 440