Te koop Huis

Beschrijving van   

Vergelijk realty's

Te koop Huis

Huis Huis Huis Huis Huis Huis Huis Huis Huis Huis Huis Huis Huis Huis Huis Huis Huis Huis Huis
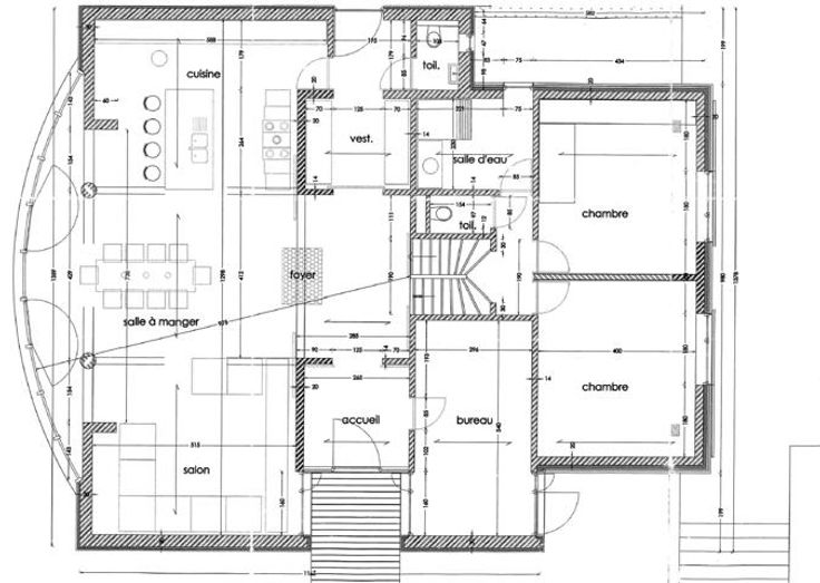
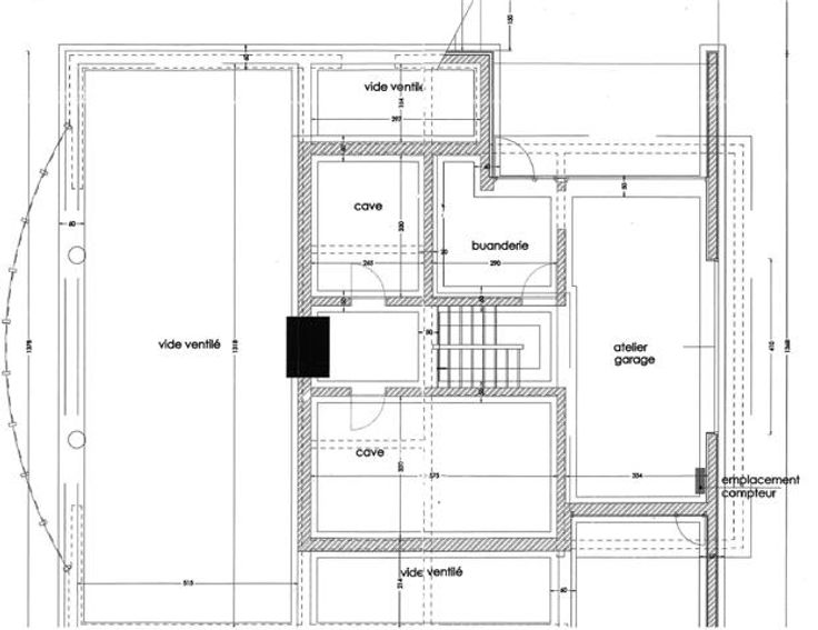
Offrez-vous un cadre de vie exceptionnel avec cette bâtisse construite en 2015 par une société autrichienne (THOMA) qui utilise du bois massif naturel pour créer un environnement sain et chaleureux, sans produits chimiques ni métal. Dotée d’un poêle de masse Tulikivi, la maison assure une chaleur douce et homogène tout au long de l'année, tout en étant performante énergétiquement. Ses points forts : • Espaces généreux et lumineux (+ de 300m²) pour une sensation d’ouverture et de liberté. • Excellentes performances écologiques et énergétiques, respectueuses de l’environnement. • Jardin de 25 ares avec une vue dégagée, parfait pour profiter du calme et de la nature. Idéalement située à Wellin, à proximité de l’autoroute E411, cette maison vous offre un accès facile tout en étant un havre de paix. Venez découvrir cette propriété rare et unique, alliant confort moderne et respect de l’environnement. Faire offre à partir de 595.000€. Cette annonce ne constitue pas une offre, mais seulement un appel à négociation lancé aux candidats acquéreurs. COMPOSITION : Sous-sol : Caves et vides ventilés. - 1/2 niveau : Buanderie et garage/atelier. Rez-de-chaussée : Hall d’entrée, vestiaire et WC, séjour avec cuisine ouverte et bureau. + 1/2 niveau : Hall de nuit, salle de douche, 2 chambres et WC. 1ier Etage : Hall de nuit, une très grande chambre (40m²) avec salle de douche et WC, et une chambre. Agréable terrasse vitrée. + 1/2 niveau : Une grande pièce (chambre) + coin à dormir. Extéri
Type vastgoed Huis
Prijs 595.000
Bewoonbare opp. 325
Aantal slaapkamers 4
Aantal badkamers 2