Te koop Appartement

Beschrijving van   

Vergelijk realty's

Te koop Appartement

Appartement Appartement Appartement Appartement Appartement Appartement Appartement Appartement Appartement Appartement Appartement Appartement Appartement Appartement Appartement Appartement Appartement Appartement Appartement Appartement Appartement Appartement Appartement
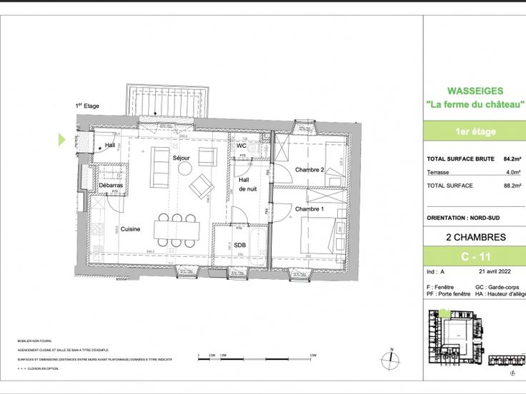
Vous souhaitez habiter au calme, dans un cadre enchanteur et dans une magnifique bâtisse du 18 ème sièce? Ne chercher plus, COLOR-IMMO vous propose ce magnifique appartement de 84m2 situé au premier étage avec une magnifique vue sur la cour intérieure de la ferme. Il se compose d'une cuisine super équipée ouverte sur un beau séjour très lumineux, 2 ch, SDD, wc, débarras. Il bénéficie également d'1 jardin privatif au sein de la propriété. Sur place médecin généraliste, magasin bio et maraîchage. Appartement basse énergie. A découvrir sans tard. 15.000 EUROS TTC de remise sur les 2 premières réservations. Libre à l'acte. Prévoir en sus un parking, un garage ou un car-port.
Type vastgoed Appartement
Prijs 335.000
Bewoonbare opp. 84
Aantal slaapkamers 2
Aantal badkamers 1