Te koop Handelszaak

Beschrijving van   

Vergelijk realty's

Te koop Handelszaak

Handelszaak Handelszaak Handelszaak Handelszaak Handelszaak Handelszaak Handelszaak Handelszaak Handelszaak Handelszaak Handelszaak Handelszaak Handelszaak Handelszaak Handelszaak Handelszaak Handelszaak Handelszaak Handelszaak Handelszaak Handelszaak Handelszaak Handelszaak
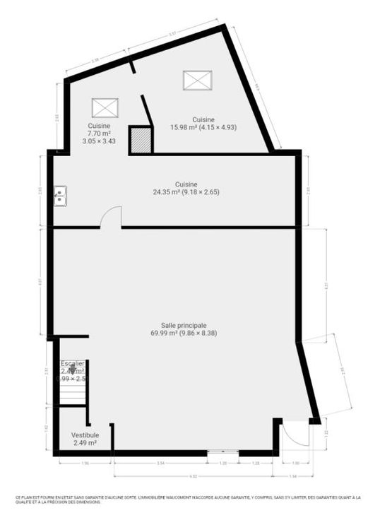
Immeuble de caractère avec chaleureux restaurant au rez-de-chaussée et spacieuse terrasse couverte, idéalement située dans l’emblématique quartier d’Outre-Meuse. Le bien repris comme maison de commerce à la matrice cadastrale se compose comme suit: Rez-de-chaussée: hall d’entrée, authentique salle de restaurant (40 à 45 places) avec bar en chêne massif, cuisine (matériel et équipements de cuisine en option) et arrière cuisine, vestiaire. 1er étage: palier, double wc clients, espaces rangements, salle de douches (douche, évier, wc) et spacieuse terrasse couverte (25 à 30 places). 2ème étage: bureaux. R.C.: 1.251€. Superficie totale terrain: 136 m². Possibilité d’acquérir le matériel et mobilier de restauration en supplément. Conformité élect rique et pompier. Opportunité rare ! Caractère authentique préservé ! Informations données à titre indicatif et non contractuelles. www.waucomont.be
Type vastgoed Commercieel
Prijs 289.000
Bewoonbare opp. 198