Te koop Huis met 4 voorgevels en garages op 9 hect...

Beschrijving van   

Vergelijk realty's

Te koop Huis met 4 voorgevels en garages op 9 hectare grond

Huis met 4 voorgevels en garages op 9 hectare grond Huis met 4 voorgevels en garages op 9 hectare grond Huis met 4 voorgevels en garages op 9 hectare grond Huis met 4 voorgevels en garages op 9 hectare grond Huis met 4 voorgevels en garages op 9 hectare grond Huis met 4 voorgevels en garages op 9 hectare grond Huis met 4 voorgevels en garages op 9 hectare grond Huis met 4 voorgevels en garages op 9 hectare grond Huis met 4 voorgevels en garages op 9 hectare grond Huis met 4 voorgevels en garages op 9 hectare grond
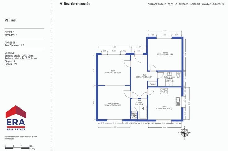
ERA B-LUX presenteert met trots een charmant huis met 4 gevels in Paliseul! Dit huis ligt in een rustige, gewilde omgeving en ligt op het zuiden, waardoor er de hele dag door veel daglicht binnenvalt. Het staat op een perceel van ongeveer 9 hectare en biedt royale volumes, perfect om te voldoen aan je behoefte aan ruimte en comfort. Bestaande uit: hal, woonkamer, eetkamer, 2 slaapkamers, waarvan een op de begane grond met de mogelijkheid van een extra slaapkamer op zolder, ingerichte keuken, 2 zolders, 2 kelders, garage met stookruimte (geschikt voor 2 auto's), 1 toilet, een schuur diedienst doet als garage en de tuin. Verkoop onder voorbehoud van registratierechten. De geadverteerde prijs is een basis voor onderhandeling en is niet bindend voor de verkoper. De verstrekte informatie is indicatief en niet bindend.
Type vastgoed Huis
Prijs 259.000
Bewoonbare opp. 186
Aantal slaapkamers 3
Aantal badkamers 1