Te koop Bouwgrond

Beschrijving van   

Vergelijk realty's

Te koop Bouwgrond

Bouwgrond Bouwgrond Bouwgrond Bouwgrond Bouwgrond Bouwgrond Bouwgrond Bouwgrond Bouwgrond
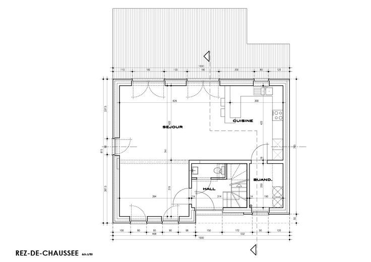
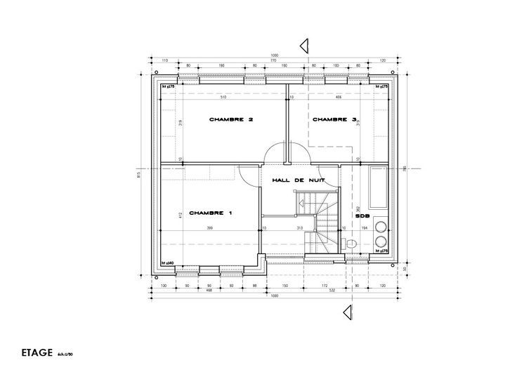
Ceci est une idée de projet, avec une liberté totale de modification pour construire la maison de vos rêves. Nous vous proposons ce splendide terrain à bâtir doté d'une superficie de 2.005 m² situé dans la belle région de Stoumont. Ce terrain vous permettra de bénéficier de 20 mètres de façade ainsi que d'une profondeur de 96 mètres. La situation de ce terrain est très avantageuse car en effet, il est situé à seulement 2 minutes d'un arrêt de bus et à moins de 10 minutes des commerces tels que les restaurants, supermarchés ainsi que des pompes à essence. L'accès à l'autoroute (E25) se trouve proche, ce qui vous permettra de rejoindre Liège. Nous vous proposons un projet de construction de 150 m² se composant comme suit : Au rez-de-chaussée, vous retrouverez un hall d'entrée, un séjour très lumineux avec une cuisine ouverte, une buanderie et un WC. Un hall de nuit, se trouvant à l'étage, vous donnera accès à 3 chambres ainsi qu'à une salle de bain. Le projet est entièrement modulable et personnalisable en fonction de vos envies et de vos désirs. Prix : terrain + projet de construction : 315 059€ Hors Frais Le prix est donné à titre indicatif et pourra être modifié en fonction des ajustements apportés au projet. Pour plus de renseignements, nous restons disponibles durant les heures de bureau.
Type vastgoed Grond
Prijs 125.000