Te koop Nieuwbouwproject te koop in de nieuwe ontw...

Beschrijving van   

Vergelijk realty's

Te koop Nieuwbouwproject te koop in de nieuwe ontwikkelingszone van

Nieuwbouwproject te koop in de nieuwe ontwikkelingszone van Nieuwbouwproject te koop in de nieuwe ontwikkelingszone van Nieuwbouwproject te koop in de nieuwe ontwikkelingszone van
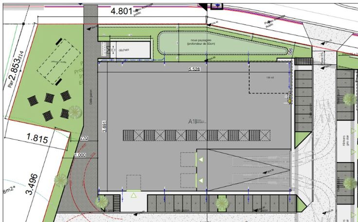
Ontdek een buitengewoon industrieel nieuwbouwproject in Fernelmont, strategisch gelegen langs de autosnelweg voor gemakkelijke toegang en uitstekende zichtbaarheid. Dit pand, met een mogelijke hoogte van 9 meter, wordt volledig op maat van de klant ontworpen om aan diverse industriële behoeften te voldoen. Dit gebouw heeft een oppervlakte van 2.040m², maar er zijn diverse oppervlaktes beschikbaar dewelke variëren tussen 2.000 en 8.500 m², ideaal voor productie, distributie of logistiek. Gebouwd volgens de huidige normen, biedt dit project moderne faciliteiten en duurzame oplossingen. De strategische locatie garandeert een vlotte verbinding. Mis deze unieke kans niet om uw bedrijf te vestigen op een toplocatie in Fernelmont.  Neem voor meer informatie contact met ons op via 0472/93.07.06!
Type vastgoed Commercieel
Prijs 2.652.000
Bewoonbare opp. 2040