Te koop Oordegemsesteenweg - Woning 2

Beschrijving van   

Vergelijk realty's

Ligging
Oordegemsesteenweg 43
9230 Wetteren

Contactgegevens
CSTRUCT
CSTRUCT
+32 494 48 02 55
E-mail deze adverteerder
BEWAREN
DOORSTUREN

Te koop Oordegemsesteenweg - Woning 2

Oordegemsesteenweg - Woning 2 Oordegemsesteenweg - Woning 2 Oordegemsesteenweg - Woning 2 Oordegemsesteenweg - Woning 2 Oordegemsesteenweg - Woning 2 Oordegemsesteenweg - Woning 2 Oordegemsesteenweg - Woning 2 Oordegemsesteenweg - Woning 2
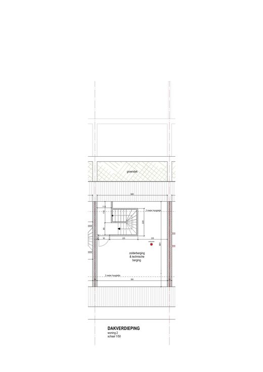
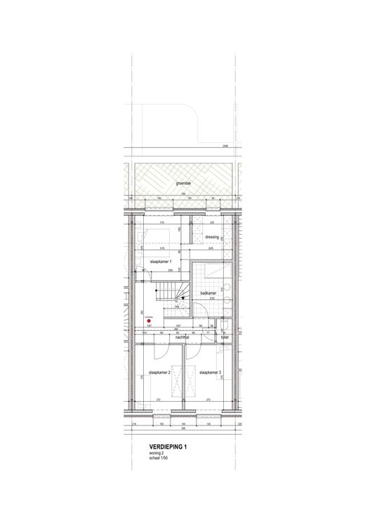
Dit nieuwbouwproject langs de Oordegemsesteenweg, vlakbij het centrum van Wetteren, biedt 4 energiezuinige woningen in een hedendaagse architecturale stijl. Het project is zeer rustig gelegen, doch met het station, openbaar vervoer, winkels, recreatie en scholen binnen handbereik. Geniet van de perfecte balans tussen wonen en bereikbaarheid dankzij de uitstekende verbindingen via de Zuidlaan naar Gent en Brussel via de E40. De woningen worden opgeleverd met een hoogwaardige afwerking en kwaliteitsmaterialen. Elke woning beschikt over vloerverwarming, een ventilatiesysteem D, zonnepanelen en een aangelegde buitenruimte met terras. De ruime woningen kunnen naar persoonlijke smaak afgewerkt worden en hebben ondermeer een vaste trap naar de tweede verdieping/zolder, die desgewenst ingericht kan worden als hobby- of speelruimte, bijkomende slaapkamer(s),... Voor meer info of een afspraak : 0473 73 62 21 - info@cstruct.be
Type vastgoed Huis
Prijs 385.900
Bewoonbare opp. 168
Aantal slaapkamers 3
Aantal badkamers 1