Te huur Goed gelegen assistentieflat

Beschrijving van   

Vergelijk realty's

Te huur Goed gelegen assistentieflat

Goed gelegen assistentieflat Goed gelegen assistentieflat Goed gelegen assistentieflat Goed gelegen assistentieflat Goed gelegen assistentieflat Goed gelegen assistentieflat Goed gelegen assistentieflat Goed gelegen assistentieflat
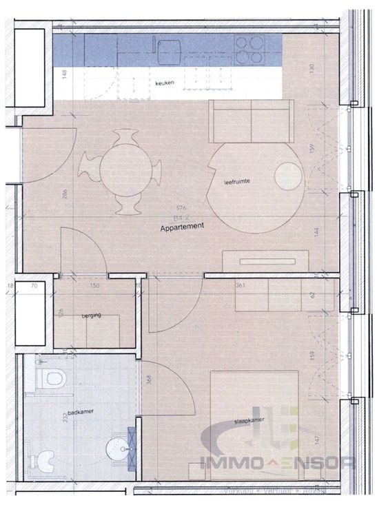
Deze assistentieflat kan enkel verhuurd worden aan mensen van 65+.   Rustig genieten van uw welverdiend pensioen aan zee, ook als u wat minder mobiel bent? Dat kan in deze nieuwbouw assistentieflat te Oostende! Voorzien van de modernste technieken, biedt dit appartement u alle comfort die u nodig hebt. Een leefruimte met open keuken, een slaapkamer, een badkamer met rolstoelvriendelijk toilet en inloop douche en een berging. U hebt ook bergruimte in de kelder ter beschikking. De verwarming is op vloerverwarming en er is een extra verwarmingselement voor wanneer de vloerverwarming uitgaat. Er zijn automatische zonneblindgordijnen. Het appartement is instapklaar en onmiddellijk; het is fris geschilderd en voorzien van verlichting. De residentie biedt een schitterende service met onder andere medische permanentie en crisisassistentie, een woonassistent, camerabewaking, toegang met badge, een fitness, kapsalon en schoonheidssalon. Er is ook een eigen brasserie. Voor deze service moeten de bewoners een zorgpakket kiezen. De assistentiewoning wordt verhuurd aan 30€ per dag; het service pakket Basic is er al van 15 € / 1 persoon/ dag of 20 € / 2 personen/dag. Er is ook een comfort pakket met bijvoorbeeld een boodschappendienst, medicijnenservice, gebruik van de wellness... Voor alle info en bezoek : info@ensor.immo of 0496 68 84 67. Renovatieplicht: onbekend
Type vastgoed Appartement
Prijs 900
Bewoonbare opp. 54
Aantal slaapkamers 1
Aantal badkamers 1