Te koop Energieneutrale gesloten woning met 3 slpks

Beschrijving van   

Vergelijk realty's

Te koop Energieneutrale gesloten woning met 3 slpks

Energieneutrale gesloten woning met 3 slpks Energieneutrale gesloten woning met 3 slpks Energieneutrale gesloten woning met 3 slpks Energieneutrale gesloten woning met 3 slpks
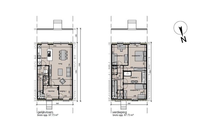
Uiterst energiezuinige woning met de nieuwste technieken (E-peil : -33!). Vraag meer info aan jouw bouwadviseur. Gelijkvloers : bestaande uit een berging (eventuele fietsen), ruime inkomhal met apart toilet, een wasruimte met technieken en living met keuken en eiland. Verdieping: master bedroom en twee bijhorende slaapkamers, ingerichte badkamer. Aparte toilet en technische ruimte met aansluiten nachthal. Bespaar fors op je energiefactuur, dankzij doorgedreven isolatiepakket, warmtepomp met vloerverwarming, ventilatiesysteem D en zonnepanelen, regenwaterput,... deze woning is future proof naar duurzaamheid. Bouwen via de Wet van Breyne met prijsvastheid! Heb je vragen? Contacteer dan je bouwadviseur via het gratis nummer 0800/62 732 of via info@durabrik.be. * Afbeeldingen en oppervlaktes zijn indicatief. Renovatieplicht: nee
Type vastgoed Huis
Prijs 399.000
Bewoonbare opp. 135
Aantal slaapkamers 3
Aantal badkamers 1