Te koop Nieuw te bouwen duurzame villa

Beschrijving van   

Vergelijk realty's

Te koop Nieuw te bouwen duurzame villa

Nieuw te bouwen duurzame villa Nieuw te bouwen duurzame villa Nieuw te bouwen duurzame villa Nieuw te bouwen duurzame villa Nieuw te bouwen duurzame villa Nieuw te bouwen duurzame villa Nieuw te bouwen duurzame villa Nieuw te bouwen duurzame villa Nieuw te bouwen duurzame villa Nieuw te bouwen duurzame villa Nieuw te bouwen duurzame villa Nieuw te bouwen duurzame villa Nieuw te bouwen duurzame villa
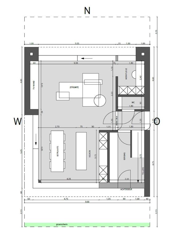
In de gemeente Ophasselt (deelgemeente van Geraardsbergen) biedt Dumobil een perceel bouwgrond aan met een oppervlakte van 843 m² voor de realisatie van deze instapklare villa. Het ontwerp is van architect Mathieu Verhoeven. De woning ligt in een landelijke omgeving met een weids uitzicht. De moderne nieuwbouwwoning heeft een open leefruimte, 3 slaapkamers, een ingerichte badkamer, een aparte douchecel, 2 toiletten, een ruime berging en een volledig uitgeruste keuken. Je kan het huidige ontwerp momenteel nog aanpassen en de villa volledig volgens je persoonlijke voorkeur en smaak laten afwerken. Hier krijgt u dus de mogelijkheid om een villa op maat te realiseren met het gemak dat er reeds een plan voor u klaar ligt. De visualisaties hier getoond zijn ter illustratie bij benadering. Contacteer ons om de plannen in te kijken van dit voorontwerp en/of bekijk meer realisaties op onze website. Deze bouwgrond is rustig gelegen en toch dichtbij het dorpscentrum en de basisschool. Op 6 km ligt het Provinciaal Domein De Gavers in een landelijke omgeving, in het zuiden van Oost-Vlaanderen. Bouwen met Dumobil is kiezen voor kwaliteit, persoonlijke begeleiding, comfort, creativiteit, flexibiliteit, vakbekwaamheid, duurzaamheid en energiezuinig bouwen. Breng vrijblijvend een bezoek aan één van onze kijkwoningen. Meer informatie via: 051/40.10.12 | info@dumobil.be | www.dumobil.be Renovatieplicht: onbekend
Type vastgoed Huis
Prijs 599.200
Aantal slaapkamers 3
Aantal badkamers 2