Te koop Serviceflat

Beschrijving van   

Vergelijk realty's

Te koop Serviceflat

Serviceflat Serviceflat Serviceflat Serviceflat Serviceflat Serviceflat Serviceflat
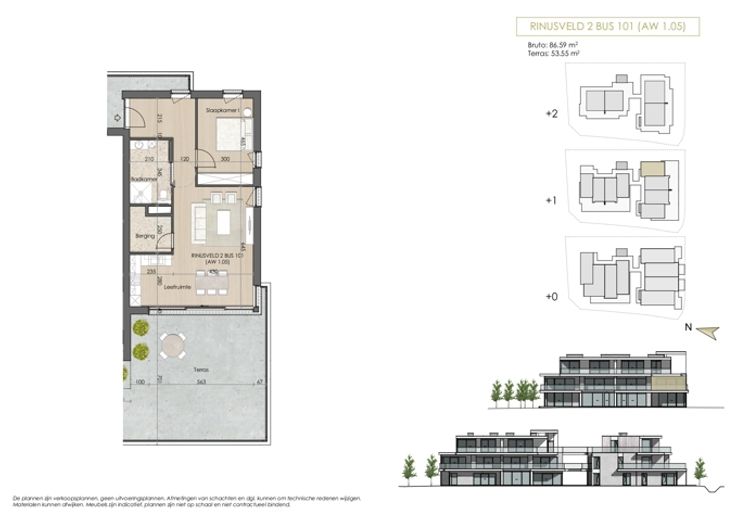
Dockx bouwt in de landelijke omgeving van Testelt 18 energie zuinige service flats voorzien van alle wooncomfort met functies zoals handgrepen, noodoproepsystemen en rolstoeltoegankelijkheid.de serviceflats zijn voorzien van 1 of 2 slaapkamers een open leefkeuken en een badkamer met inloopdouche. De gezellige ontmoetingsruimte is ontworpen om een ​​warme en uitnodigende sfeer te creëren waar bewoners graag samenkomen en een gezellige babbel kunnen hebben. het volledige complex is voorzien van ondergrondse parkeerplaatsen en bergingen die apart aangekocht kunnen worden. Hebben wij uw interesse gewekt neem dan snel contact op met Jasmine Tegenbos ! 0497 64 76 60 Jasmine@dockx.com
Type vastgoed Appartement
Prijs 299.600
Bewoonbare opp. 86
Aantal slaapkamers 1
Aantal badkamers 1