Te huur Appartement

Beschrijving van   

Vergelijk realty's

Te huur Appartement

Appartement Appartement Appartement Appartement Appartement Appartement Appartement Appartement Appartement Appartement Appartement Appartement Appartement Appartement Appartement
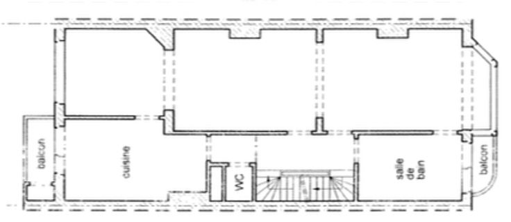
Très bel appartement 1 chambre ultra lumineux de +/-75m2 (lumière traversante) entièrement rénové. Il est situé au 1er étage dans une petite copropriété SANS CHARGE (4 appartements au total), proche de nombreux commerces et très bien desservi par les transports en commun. Il se compose d'un hall, un salon, une salle à manger, une cuisine full équipée (four, taque, hotte, lave vaisselle, frigo, congélateur), une grande chambre (20m2), une grande salle de bain avec double évier et machine à laver (possibilité de rajouter un séchoir), un wc séparé, parquet, petite terrasse arrière & avant. PAS DE CHARGE COMMUNE COMPTEURS INDIVIDUELS (eau-gaz-electricité) Double vitrage partout 2 caves Les parties communes ont également été rénovées - Peb en cours de réalisation. DISPONIBLE IMMEDIATEMENT Visites sur rendez-vous 0475/63.23.23 - lionel@zalc.be
Type vastgoed Appartement
Prijs 1.050
Bewoonbare opp. 75
Aantal slaapkamers 1
Aantal badkamers 1