Te koop Nieuwbouw in een landelijke bouwstijl

Beschrijving van   

Vergelijk realty's

Te koop Nieuwbouw in een landelijke bouwstijl

Nieuwbouw in een landelijke bouwstijl Nieuwbouw in een landelijke bouwstijl Nieuwbouw in een landelijke bouwstijl Nieuwbouw in een landelijke bouwstijl Nieuwbouw in een landelijke bouwstijl Nieuwbouw in een landelijke bouwstijl Nieuwbouw in een landelijke bouwstijl Nieuwbouw in een landelijke bouwstijl Nieuwbouw in een landelijke bouwstijl Nieuwbouw in een landelijke bouwstijl Nieuwbouw in een landelijke bouwstijl Nieuwbouw in een landelijke bouwstijl Nieuwbouw in een landelijke bouwstijl
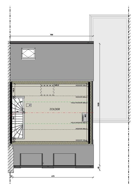
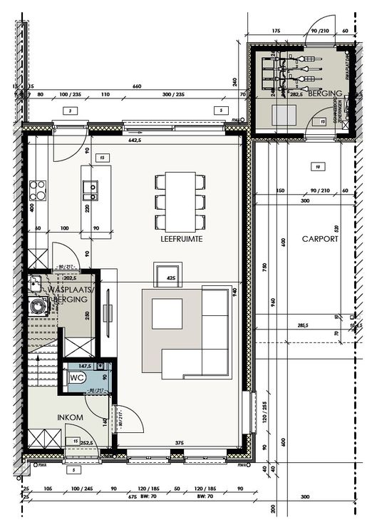
In de Koning Boudewijnstraat in Lauwe, in het woonproject Korenhof bieden wij momenteel deze prachtige halfopen bebouwing (lot 4) in een landelijke bouwstijl met zadeldak aan. De woning is gelegen op een perceel van 425 m2 en kwalitatief afgewerkt met een E-peil onder de 20. Verder is deze nieuwbouw voorzien van een kwalitatief ingerichte keuken en badkamer, 3 slaapkamers, een vaste trap naar de zolder (of extra slaap- of hobbykamer), een aangebouwde carport en tuinberging, vloerverwarming, een geothermische warmtepomp, zonnepanelen, een ventilatiesysteem type D en alle nodige bevloeringen. Het woonproject Korenhof is gelegen aan de rand van het dorp, dichtbij alle faciliteiten. In deze doodlopende straat, met een prachtig uitzicht op de uitgestrekte velden kan je genieten van rust en stilte. Deze prijs is exclusief kosten en btw, bekijk de ALL-IN prijs op onze website voor een volledig afgewerkte en instapklare woning, inclusief alle kosten (notariskosten, aansluitkosten, verkooprecht en btw) en de aanleg van de (voor)tuin met afsluitingen, terras, gras, oprit en een pad naar de voordeur. Klaar om te verhuizen? Meer info, prijzen en grondplan op: www.dumobil.be/woonprojecten/nieuwbouwwoningen-lauwe Of vraag vrijblijvend informatie via onze bouwadviseur Sam Borrey: sam@dumobil.be | 0483 210 133   Renovatieplicht: onbekend
Type vastgoed Huis
Prijs 454.200
Bewoonbare opp. 172
Aantal slaapkamers 3
Aantal badkamers 1