Te koop NIEUWBOUW APPARTEMENT OP TOPLOCATIE

Beschrijving van   

Vergelijk realty's

Te koop NIEUWBOUW APPARTEMENT OP TOPLOCATIE

NIEUWBOUW APPARTEMENT OP TOPLOCATIE NIEUWBOUW APPARTEMENT OP TOPLOCATIE NIEUWBOUW APPARTEMENT OP TOPLOCATIE NIEUWBOUW APPARTEMENT OP TOPLOCATIE NIEUWBOUW APPARTEMENT OP TOPLOCATIE NIEUWBOUW APPARTEMENT OP TOPLOCATIE NIEUWBOUW APPARTEMENT OP TOPLOCATIE NIEUWBOUW APPARTEMENT OP TOPLOCATIE NIEUWBOUW APPARTEMENT OP TOPLOCATIE NIEUWBOUW APPARTEMENT OP TOPLOCATIE NIEUWBOUW APPARTEMENT OP TOPLOCATIE NIEUWBOUW APPARTEMENT OP TOPLOCATIE NIEUWBOUW APPARTEMENT OP TOPLOCATIE NIEUWBOUW APPARTEMENT OP TOPLOCATIE NIEUWBOUW APPARTEMENT OP TOPLOCATIE NIEUWBOUW APPARTEMENT OP TOPLOCATIE NIEUWBOUW APPARTEMENT OP TOPLOCATIE NIEUWBOUW APPARTEMENT OP TOPLOCATIE NIEUWBOUW APPARTEMENT OP TOPLOCATIE
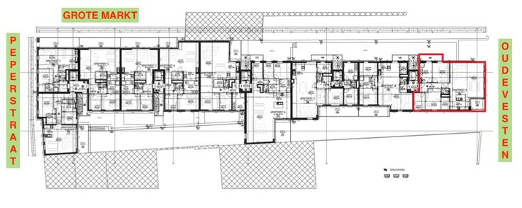
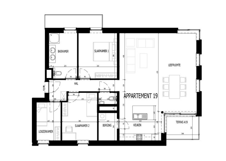
Residentie Obelisk bevindt zich op de Grote Markt van Ronse! Alle voorzieningen op wandelafstand! Dit ruim appartement is gelegen op de tweede verdieping, én heeft een oppervlakte van 128 m². Indeling gaat als volgt: een inkomhal, ruime leefruimte met geïnstalleerde keuken, berging, apart toilet, badkamer met inloopdouche, badkamermeubel en toilet, 3 slaapkamers, én een terras.  Kenmerken: Kwaliteitsvolle materialen, 3 slaapkamers, oppervlakte: 128 m², centrum Ronse (kant Oude Vesten), terras: 6 m²... Mogelijkheid tot aankoop van ondergrondse parkeerplaats. Interesse? Contacteer Matthias Roman: 0485 53 17 16 Renovatieplicht: nee
Type vastgoed Appartement
Prijs 335.000
Bewoonbare opp. 128
Aantal slaapkamers 3
Aantal badkamers 1