Te koop Bel-étage met magazijn

Beschrijving van   

Vergelijk realty's

Te koop Bel-étage met magazijn

Bel-étage met magazijn Bel-étage met magazijn Bel-étage met magazijn Bel-étage met magazijn Bel-étage met magazijn Bel-étage met magazijn Bel-étage met magazijn Bel-étage met magazijn Bel-étage met magazijn Bel-étage met magazijn
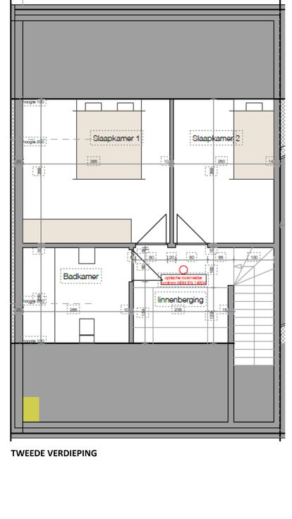
Bel-étage (BJ 2017) met magazijn op gelijkvloers, uitgerust met industriële poort en plafondhoogte van 3m80. Boven het magazijn is een woning bestaande uit 2 verdiepen. 1ste verdiep: woonkamer met open keuken, bureauruimte, berging & toilet. 2de verdiep: overloop met 2 slaapkamers & badkamer. Woongedeelte is momenteel verhuurd voor €800/maand. Kan indien gewenst vrij van huur zijn vanaf 1 september. Magazijn leeg bij verkoop (in gebruik door huidige eigenaar). Zonnepanelen aanwezig. Mobiscore van 8.2/10. Ideaal pand voor zelfstandigen. Geïnteresseerd? Mail naar dakwerken-dl@proximus.be Bezichtiging op aanvraag mogelijk.
Type vastgoed Huis
Prijs 399.000
Bewoonbare opp. 162
Aantal slaapkamers 2
Aantal badkamers 1