Te huur Benedenverdieping

Beschrijving van   

Vergelijk realty's

Ligging
6060 Gilly
Contactgegevens
+32494680737
E-mail deze adverteerder
BEWAREN
DOORSTUREN

Te huur Benedenverdieping

Benedenverdieping Benedenverdieping Benedenverdieping Benedenverdieping Benedenverdieping
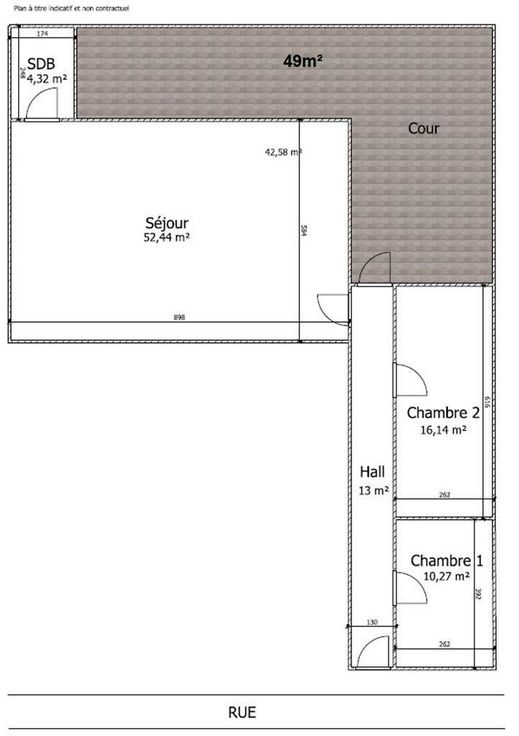
L'appartement est très spacieux et lumineux En description: - Cuisine moderne ouverte (Taque vitro - Hotte - Evier 2 bacs - Emplacement frigo et Lave-vaisselle) donnant sur un vaste salon - Grande chambre parentale (16m²) - Seconde chambre (10m²) - Cours carrelée (25m²) - Petit jardin (14m²) - Abris exterieur couvert / Debarras (10m²) - Emplacement cave - Compteurs - Thermostat connecté - Entrée sécurisée par badge - Bâtiment protégé par vidéo-surveillance - Visiophone - Centrale d'alarme - Alarme incendie - Filtre calcaire Quelques travaux importants en cours pour l'ensemble du bâtiment: [Fin prévue: Avril] - Isolation des toitures / murs et cave de tous le bâtiment - Remplacement du crépis existant - Installation système d'aeration performant à double-flux ----- Objectif PEB A/B ------ Frais et charges: - Nettoyage des communs - Entretien des chaudières - Assurance incendie non-recours - Entretien général et maintenance Preuve de solvabilité / Conditions; - Garant (2 garants est un +) - Un salaire correcte - Pas de chien
Type vastgoed Appartement
Prijs 850
Bewoonbare opp. 115
Aantal slaapkamers 2