Te huur Commerciële panden

Beschrijving van   

Vergelijk realty's

Te huur Commerciële panden

Commerciële panden Commerciële panden Commerciële panden Commerciële panden Commerciële panden Commerciële panden Commerciële panden Commerciële panden Commerciële panden Commerciële panden Commerciële panden Commerciële panden Commerciële panden
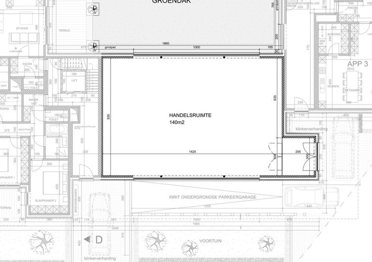
Centraal gelegen handelspand met een oppervlakte van 140 m². Dichtbij oprit autostrade E313. Dit handelspand is voorzien van een toilet en beschikt over een terras aan de achterzijde. Grote raampartijen zowel aan de straatkant als de achterkant. Renovatieplicht: onbekend
Type vastgoed Commercieel
Prijs 1.750