Te koop Bouwgrond

Beschrijving van   

Vergelijk realty's

Te koop Bouwgrond

Bouwgrond Bouwgrond Bouwgrond Bouwgrond Bouwgrond Bouwgrond
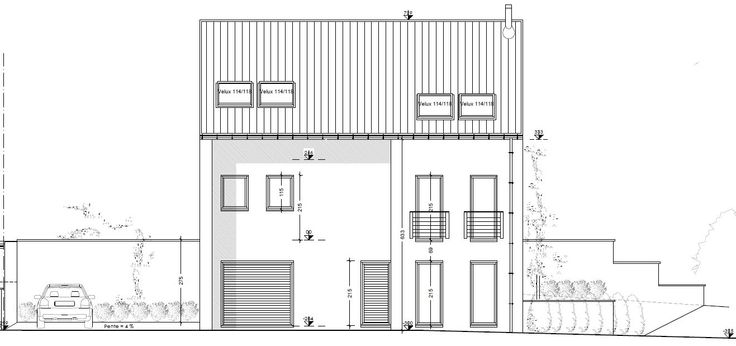
Sur les hauteurs du Mont Sarah, un magnifique terrain à bâtir de 12 ares situé en plein centre de Binche. À 5 min à pied de la Grand-Place et de toutes ses commodités mais aussi du calme de la campagne, un terrain à bâtir de 12 ares avec permis d'urbanisme accepté. Projet de maison bel-étage avec un bureau de 26m² et un garage au rez-de-chaussée. Au 1er : grand séjour, salle à manger, cuisine, buanderie et terrasse/jardin. Au dernier étage : 4 chambres et une salle de bain. Faire offre à partir de 89 000 € (terrain et plans compris). -> Agences immobilières s’abstenir merci <- Les informations sont données à titre informatif et non contractuel. Les propriétaires se réservent le droit d’apprécier la hauteur et la qualité des offres afin d’effectuer leur choix en fonction de leurs propres critères. Compléments d'informations au 0477 58 75 36.
Type vastgoed Grond
Prijs 89.000