Te koop Magazijnen en werkplaatsen in Libramont

Beschrijving van   

Vergelijk realty's

Te koop Magazijnen en werkplaatsen in Libramont

Magazijnen en werkplaatsen in Libramont Magazijnen en werkplaatsen in Libramont Magazijnen en werkplaatsen in Libramont Magazijnen en werkplaatsen in Libramont Magazijnen en werkplaatsen in Libramont Magazijnen en werkplaatsen in Libramont Magazijnen en werkplaatsen in Libramont Magazijnen en werkplaatsen in Libramont Magazijnen en werkplaatsen in Libramont Magazijnen en werkplaatsen in Libramont Magazijnen en werkplaatsen in Libramont Magazijnen en werkplaatsen in Libramont Magazijnen en werkplaatsen in Libramont
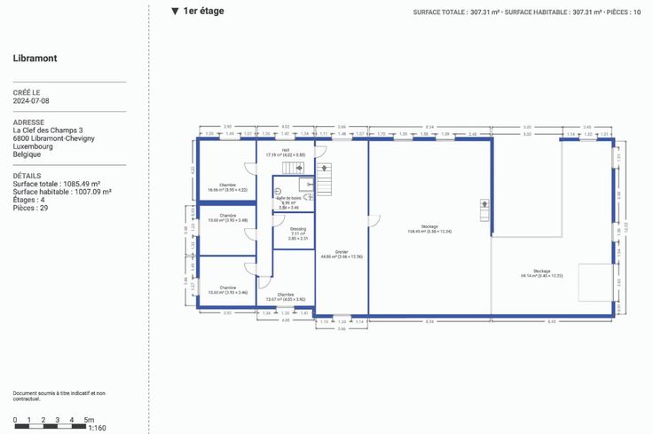
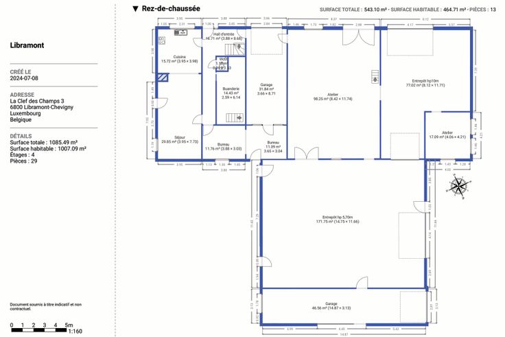
Era B-lux heeft het genoegen u een multifunctioneel gebouw in Libramont voor te stellen, perfect voor het ontwikkelen van uw professionele activiteit. Met meer dan 700 m² opslag- en atelierruimte hebt u alle mogelijkheden om uw bedrijf te ontwikkelen. Het wordt momenteel gebruikt door een bekende schrijnwerkerij die op het punt staat te verhuizen en biedt dus een zeldzame kans. Bovendien is de toegang geoptimaliseerd voor vrachtwagens dankzij twee aparte ingangen, wat een efficiënte logistiek garandeert. De strategische ligging en de grote volumes maken het tot een unieke kans. Woning nodig? Er kan een ruim huis bijgekocht worden. Het biedt 4 slaapkamers en een inrichtbare zolder, perfect om uw gezin comfortabel te huisvesten en dicht bij uw bedrijf te blijven. De gegeven informatie is alleen bedoeld als richtlijn en is niet contractueel bindend. De eigenaar behoudt zich het recht voor om een bod te doen op het hele pand.
Type vastgoed Commercieel
Prijs 280.000
Bewoonbare opp. 730