Te koop Ruim huis met 4 slaapkamers in Libramont

Beschrijving van   

Vergelijk realty's

Te koop Ruim huis met 4 slaapkamers in Libramont

Ruim huis met 4 slaapkamers in Libramont Ruim huis met 4 slaapkamers in Libramont Ruim huis met 4 slaapkamers in Libramont Ruim huis met 4 slaapkamers in Libramont Ruim huis met 4 slaapkamers in Libramont Ruim huis met 4 slaapkamers in Libramont Ruim huis met 4 slaapkamers in Libramont Ruim huis met 4 slaapkamers in Libramont Ruim huis met 4 slaapkamers in Libramont Ruim huis met 4 slaapkamers in Libramont Ruim huis met 4 slaapkamers in Libramont
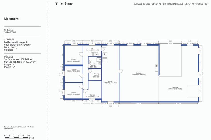
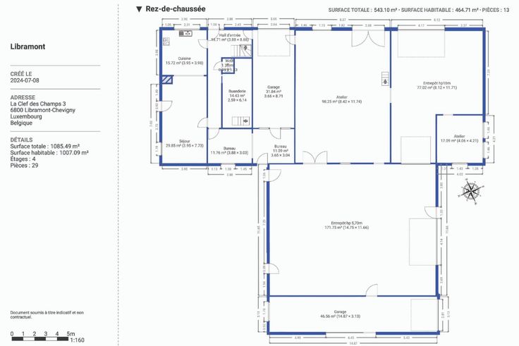
Era B-lux heeft het genoegen u deze ruime woning voor te stellen, gelegen in het charmante dorpje Rondu, gemeente Libramont. Het ligt op slechts 15 minuten van Libramont en Bastogne en heeft een strategische ligging, dicht bij alle voorzieningen. Het huis bestaat uit een keuken, een woonkamer, een bijkeuken, twee kantoren (ideaal voor een professionele activiteit), een toilet, vier slaapkamers, een badkamer, een kleedkamer of berging, drie zolders die verbouwd kunnen worden, een garage, een kelder en een binnenplaats. Op zoek naar meer ruimte? 2 magazijnen en een werkplaats met meer dan 700m² bruikbare ruimte kunnen erbij gekocht worden. De verstrekte informatie is indicatief en niet bindend. De eigenaar behoudt zich het recht voor om prioriteit te geven aan een bod op het hele perceel.
Type vastgoed Huis
Prijs 240.000
Bewoonbare opp. 190
Aantal slaapkamers 4
Aantal badkamers 1