Te koop Grond

Beschrijving van   

Vergelijk realty's

Te koop Grond

Grond Grond Grond Grond
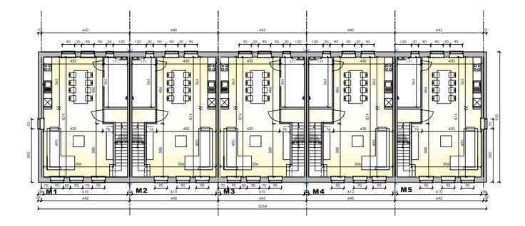
Ce terrain dispose d’un permis de construire validé pour la création de 5 habitations de type bel étage, offrant ainsi une opportunité unique pour les investisseurs et promoteurs immobiliers. Atouts : - Projet immobilier déjà approuvé, vous permettant de démarrer rapidement. - Quartier en plein développement, favorisant un bon retour sur investissement. - Proximité des écoles, commerces et infrastructures. N'attendez plus pour concrétiser vos ambitions immobilières ! Pour plus d'informations ou pour organiser une visite, n'hésitez pas à nous contacter.
Type vastgoed Grond
Prijs 125.000